Real Estate Agent in Connecticut and Western Massachusetts

230 Tom Swamp Road
Hamden, Connecticut

Single Family For Sale

6

Bedrooms

4 (full) / 2 (half)

Bathrooms

4,075

Sq Ft

$ 599,900

Price

230 Tom Swamp Road
Hamden, Connecticut

Hamden, Connecticut

Description:

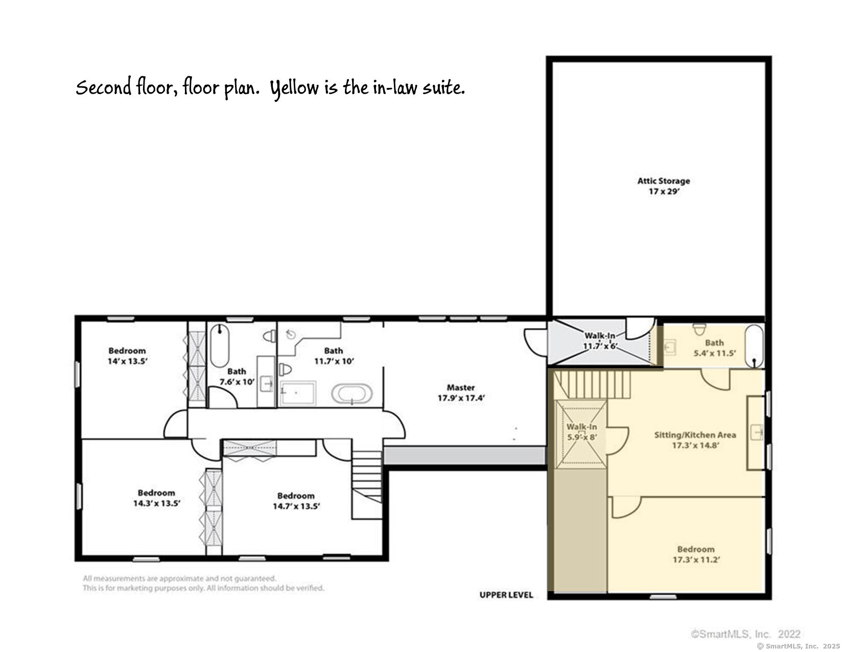
"The perfect home for a flexible, multi-generational lifestyle-featuring a spacious 4-bedroom main residence plus a private 2-bedroom in-law suite." This home has it all: Main level:The main level boasts a spacious dine-in kitchen with gleaming hardwood floors and sliding doors that lead to a generous back deck-perfect for entertaining. Adjacent to the kitchen is a formal dining room and an elegant living room with a wood burning fireplace. A separate family room featuring a gas fireplace adds to the home's warmth and charm. All rooms on this level are finished with beautiful hardwood flooring. Oh, and do you need a "man cave" or wine cellar? There is a finished room in the basement. Upper level: The primary bedroom is a true private retreat, complete with a luxurious en-suite spa bathroom and a walk-in closet with custom built-in shelving that leads to a large walk-in attic. Three additional well-sized bedrooms and a full bath complete the upper level, offering ample space for family or guests. Two level In-Law Apartment: The in-law suite is fully equipped with its own kitchen featuring hardwood floors, a den, a bedroom with an en-suite full bath, and an additional half bath with laundry. Head upstairs in the apartment to discover a versatile recreation/craft/exercise area, along with a second bedroom and full bath-ideal for extended family or guests, home business or generate rental income.

Listing Courtesy of Vylla Home (CT) LLC

Meet Our Team

Our team consists of dedicated real estate professionals passionate about helping our clients achieve their goals. Every client receives personalized attention, expert guidance, and unparalleled service. Meet our team:

Alison Malkin
Alison Malkin

Broker/Owner

860-214-8008

Email
Alison Malkin
Nicole Malkin James

Broker/Owner

843-614-7222

Email
Alison Malkin
Luis Torres

Associate Broker

860-383-5211

Email
Alison Malkin
Debra Pliego

Realtor®

860-919-7376

Email
Alison Malkin
Madison Wells

Realtor®

860-538-7567

Email
Alison Malkin
Lori Sierpinski

Realtor®

860-222-4692

Email
Alison Malkin
Jim Murkette

Realtor®

860-539-5009

Email
Alison Malkin
Leah Pliego

Realtor®

860-681-7373

Email
Alison Malkin
Shaissa Acosta

Realtor®

860-249-1641

Email

Acres : 0.92
Appliances Included : Gas Range, Refrigerator, Dishwasher
Attic : Walk-In
Basement : Full, Partially Finished
Full Baths : 4
Half Baths : 2
Baths Total : 6
Beds Total : 6
City : Hamden
Cooling : Central Air
County : New Haven
Elementary School : West Woods
Fireplaces : 2
Foundation : Concrete
Fuel Tank Location : Above Ground
Garage Parking : Attached Garage
Garage Slots : 2
Description : Lightly Wooded, Level Lot
Middle School : Hamden
Neighborhood : Mount Carmel
Parcel : 1146496
Postal Code : 06518
Roof : Asphalt Shingle
Additional Room Information : Laundry Room
Sewage System : Septic
SgFt Description : total s.f. main residence and in-law
Total SqFt : 4075
Tax Year : July 2025-June 2026
Total Rooms : 13
Watersource : Private Well
weeb : RPR, IDX Sites, Realtor.com

Phone

860-384-7624

Address

20 Hopmeadow St, Unit 821, Weatogue, CT 06089


© Copyright By Essentia Realty