Real Estate Agent in Connecticut and Western Massachusetts

91 Church Street
New Haven, Connecticut

Condo/Co-Op For Sale

2

Bedrooms

2 (full) / 1 (half)

Bathrooms

1,228

Sq Ft

$ 459,000

Price

91 Church Street
New Haven, Connecticut

New Haven, Connecticut

Description:

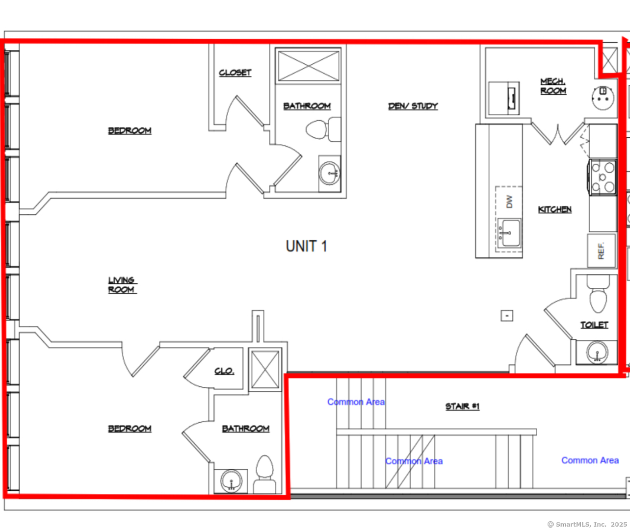
Urban oasis in the heart of Downtown New Haven! Welcome to The Lofts at 91 Church - where historic charm meets modern luxury. This fabulous ranch-style condominium is part of a 2015 build-out within an early 1900's building, offering the perfect blend of classic architecture and contemporary design. This spectacular unit features expansive open-concept living and refined finishes throughout. The oversized Living and Dining area flows seamlessly into a sleek, modern Kitchen with quartz countertops, brand-new stainless steel appliances, and a stylish breakfast bar-perfect for entertaining or quiet mornings at home. Each of the two generously-sized Bedroom Suites includes its own private Full Bathroom and ample closet space. Additional highlights include in-unit laundry, engineered hardwood floors, Thermopane windows, central air conditioning, elevator access, guest Half Bathroom, office nook, and a 117 sq ft private storage area in the basement. Ideally located near the New Haven Green, Wooster Square, Yale University, and Yale New Haven Hospital, this exceptional condominium offers a peaceful retreat in the heart of the city!

Listing Courtesy of Press/Cuozzo Realtors

Meet Our Team

Our team consists of dedicated real estate professionals passionate about helping our clients achieve their goals. Every client receives personalized attention, expert guidance, and unparalleled service. Meet our team:

Alison Malkin
Alison Malkin

Broker/Owner

860-214-8008

Email
Alison Malkin
Nicole Malkin James

Broker/Owner

843-614-7222

Email
Alison Malkin
Luis Torres

Associate Broker

860-383-5211

Email
Alison Malkin
Debra Pliego

Realtor®

860-919-7376

Email
Alison Malkin
Madison Wells

Realtor®

860-538-7567

Email
Alison Malkin
Lori Sierpinski

Realtor®

860-222-4692

Email
Alison Malkin
Jim Murkette

Realtor®

860-539-5009

Email
Alison Malkin
Leah Pliego

Realtor®

860-681-7373

Email
Alison Malkin
Shaissa Acosta

Realtor®

860-249-1641

Email

Appliances Included : Electric Range, Microwave, Refrigerator, Dishwasher, Washer, Dryer
Association Amenities : Elevator
Association Fee Includes : Grounds Maintenance, Trash Pickup, Snow Removal, Water, Sewer
Basement : Full, Shared Basement, Storage, Interior Access, Walk-out, Concrete Floor
Full Baths : 2
Half Baths : 1
Baths Total : 3
Beds Total : 2
City : New Haven
Complex : The Lofts at 91 Church
Cooling : Central Air
County : New Haven
Elementary School : John C. Daniels
Garage Parking : None
Description : City Views
Amenities : Library, Medical Facilities, Park, Public Transportation
Neighborhood : N/A
Parcel : 999999999
Pets : 1 dog or 1 cat no taller
Pets Allowed : Yes
Postal Code : 06510
Sewage System : Public Sewer Connected
SgFt Description : Per owner
Total SqFt : 1228
Tax Year : July 2025-June 2026
Total Rooms : 4
Watersource : Public Water Connected
weeb : RPR, IDX Sites, Realtor.com

Phone

860-384-7624

Address

20 Hopmeadow St, Unit 821, Weatogue, CT 06089


© Copyright By Essentia Realty