Real Estate Agent in Connecticut and Western Massachusetts

42 Forest Street
New Canaan, Connecticut

Residential Rental

2

Bedrooms

2 (full) / 1 (half)

Bathrooms

1,960

Sq Ft

$ 13,000

Per Month

42 Forest Street
New Canaan, Connecticut - Loft A

New Canaan, Connecticut

Description:

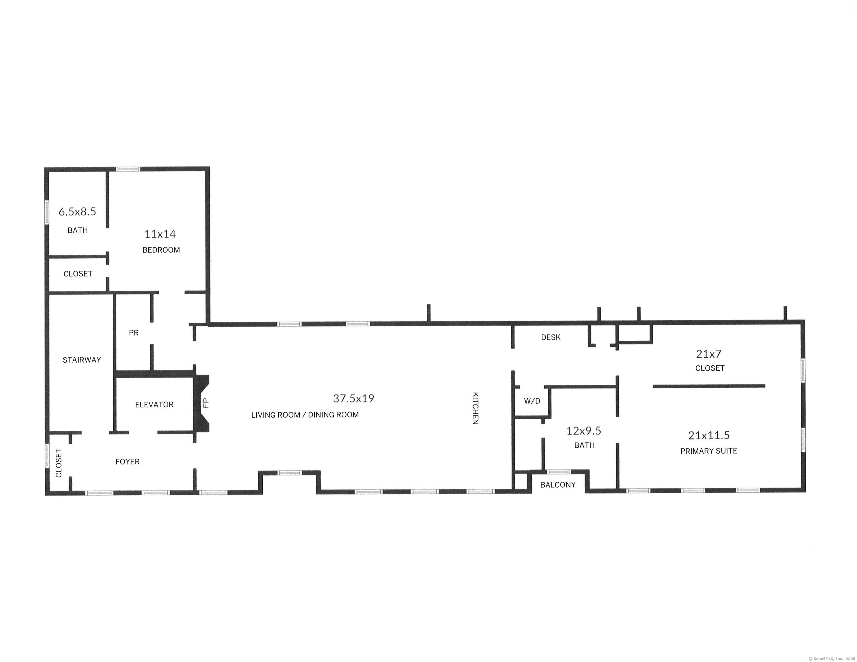
An extraordinary one of a kind loft in a posh enclave of town houses. Your private elevator opens to your fabulous loft overlooking the Village of New Canaan. Sophisticated open floor plan - for the pinnacle in modern living. This 2 bedroom, 2.5 bath Loft with gorgeous wide plank white oak floors, custom build-ins, fireplace with marble surround, designer chef's kitchen, ensuite baths with artisan cut marble counters, and primary bath with heated floors. Lofts have an incredible 1,000 sq/ft roof deck and lounge with kitchen, grill, and spaces perfect for entertaining, dining, and socializing! The loft has 2 reserved parking spaces. Incomparable location, just steps to top restaurants and the finest shopping in the prettiest New England village.

Listing Courtesy of William Pitt Sotheby's Int'l

Meet Our Team

Our team consists of dedicated real estate professionals passionate about helping our clients achieve their goals. Every client receives personalized attention, expert guidance, and unparalleled service. Meet our team:

Alison Malkin
Alison Malkin

Broker/Owner

860-214-8008

Email
Alison Malkin
Nicole Malkin James

Broker/Owner

843-614-7222

Email
Alison Malkin
Luis Torres

Associate Broker

860-383-5211

Email
Alison Malkin
Debra Pliego

Realtor®

860-919-7376

Email
Alison Malkin
Madison Wells

Realtor®

860-538-7567

Email
Alison Malkin
Lori Sierpinski

Realtor®

860-222-4692

Email
Alison Malkin
Jim Murkette

Realtor®

860-539-5009

Email
Alison Malkin
Leah Pliego

Realtor®

860-681-7373

Email
Alison Malkin
Shaissa Acosta

Realtor®

860-249-1641

Email

Appliances Included : Oven/Range, Microwave, Refrigerator, Dishwasher, Washer, Dryer
Basement : None
Full Baths : 2
Half Baths : 1
Baths Total : 3
Beds Total : 2
City : New Canaan
Cooling : Central Air
County : Fairfield
Elementary School : South
Fireplaces : 1
Garage Parking : None, Parking Lot, Assigned Parking
Description : N/A
Middle School : Saxe Middle
Amenities : Health Club, Library, Medical Facilities, Park, Private School(s), Public Pool, Shopping/Mall, Tennis Courts
Neighborhood : N/A
Parcel : 189092
Total Parking Spaces : 2
Pets : Pets are allowed. Ask LB
Pets Allowed : Yes
Postal Code : 06840
Additional Room Information : Foyer
Sewage System : Public Sewer Connected
SgFt Description : One floor living
Total SqFt : 1960
Total Rooms : 6
Watersource : Public Water Connected
weeb : RPR, IDX Sites, Realtor.com

Phone

860-384-7624

Address

20 Hopmeadow St, Unit 821, Weatogue, CT 06089


© Copyright By Essentia Realty