Real Estate Agent in Connecticut and Western Massachusetts

218 Hope Valley Road
Hebron, Connecticut

Single Family For Sale

3

Bedrooms

3 (full) / 0 (half)

Bathrooms

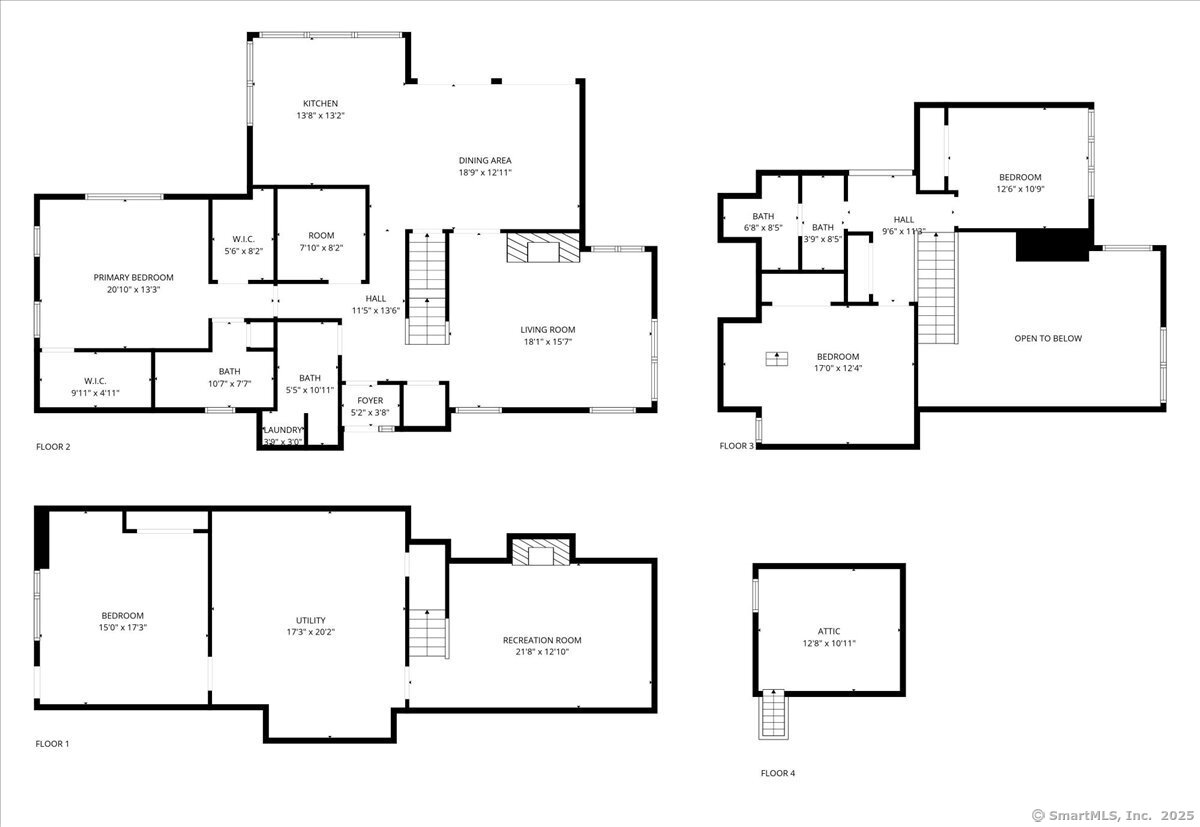
2,107

Sq Ft

$ 688,000

Price

218 Hope Valley Road
Hebron, Connecticut

Hebron, Connecticut

Description:

Picturesque!! Discover the perfect blend of privacy, comfort, and equestrian living. Tucked 500 feet off the road, this property offers peace and seclusion along with everything a horse enthusiast or hobbyist could ask for. A beautiful custom-built 36' x 36' Amish Gambrel-roof barn (2012) featuring 5-stalls, spacious tack room, abundant hay storage, and acres of fenced grass fields. The home itself is just as impressive. Cathedral ceilings with double ceiling fans in the kitchen which boasts granite countertops, a brand-new stainless steel refrigerator, and opens beautifully for entertaining out to a deck with a stunning view! Right around the corner from the deck is a 3 season porch to relax and still enjoy the view! Hardwood floors and elegant tile flow throughout, while the living room showcases a soaring cathedral ceiling and a striking floor-to-ceiling brick fireplace. The walkout lower level provides additional living space, complete with a den and second fireplace, PLUS a dedicated Riders' Lounge with a cozy wood stove-perfect after a day of riding. Outside, you'll also find a charming henhouse (ideal for chickens or storage), a four-car garage for all your vehicles, and a fully paid-for passive furnace solar system for energy savings without the transfer hassle. Whether you dream of swimming after a trail ride, raising animals, or simply enjoying scenic views and true privacy, this property has it all.

Listing Courtesy of Real Broker CT, LLC

Meet Our Team

Our team consists of dedicated real estate professionals passionate about helping our clients achieve their goals. Every client receives personalized attention, expert guidance, and unparalleled service. Meet our team:

Alison Malkin
Alison Malkin

Broker/Owner

860-214-8008

Email
Alison Malkin
Nicole Malkin James

Broker/Owner

843-614-7222

Email
Alison Malkin
Luis Torres

Associate Broker

860-383-5211

Email
Alison Malkin
Debra Pliego

Realtor®

860-919-7376

Email
Alison Malkin
Madison Wells

Realtor®

860-538-7567

Email
Alison Malkin
Lori Sierpinski

Realtor®

860-222-4692

Email
Alison Malkin
Jim Murkette

Realtor®

860-539-5009

Email
Alison Malkin
Leah Pliego

Realtor®

860-681-7373

Email
Alison Malkin
Shaissa Acosta

Realtor®

860-249-1641

Email

Acres : 5.29
Appliances Included : Oven/Range, Microwave, Refrigerator, Freezer, Dishwasher, Washer, Dryer
Attic : Walk-In
Basement : Full, Fully Finished, Concrete Floor, Full With Walk-Out
Full Baths : 3
Baths Total : 3
Beds Total : 3
City : Hebron
Cooling : Central Air
County : Tolland
Elementary School : Per Board of Ed
Fireplaces : 2
Foundation : Concrete
Fuel Tank Location : Above Ground
Garage Parking : Detached Garage
Garage Slots : 4
Description : Fence - Partial, Open Lot
Amenities : Golf Course, Library, Park
Neighborhood : Amston
Parcel : 1624145
Pool Description : Vinyl, In Ground Pool
Postal Code : 06231
Roof : Asphalt Shingle
Sewage System : Septic
Total SqFt : 2107
Tax Year : July 2025-June 2026
Total Rooms : 8
Watersource : Private Well
weeb : RPR, IDX Sites, Realtor.com

Phone

860-384-7624

Address

20 Hopmeadow St, Unit 821, Weatogue, CT 06089


© Copyright By Essentia Realty