Real Estate Agent in Connecticut and Western Massachusetts

27 Eagle Road
Norwalk, Connecticut

Single Family For Sale

3

Bedrooms

2 (full) / 0 (half)

Bathrooms

1,308

Sq Ft

$ 500,000

Price

27 Eagle Road
Norwalk, Connecticut

Norwalk, Connecticut

Description:

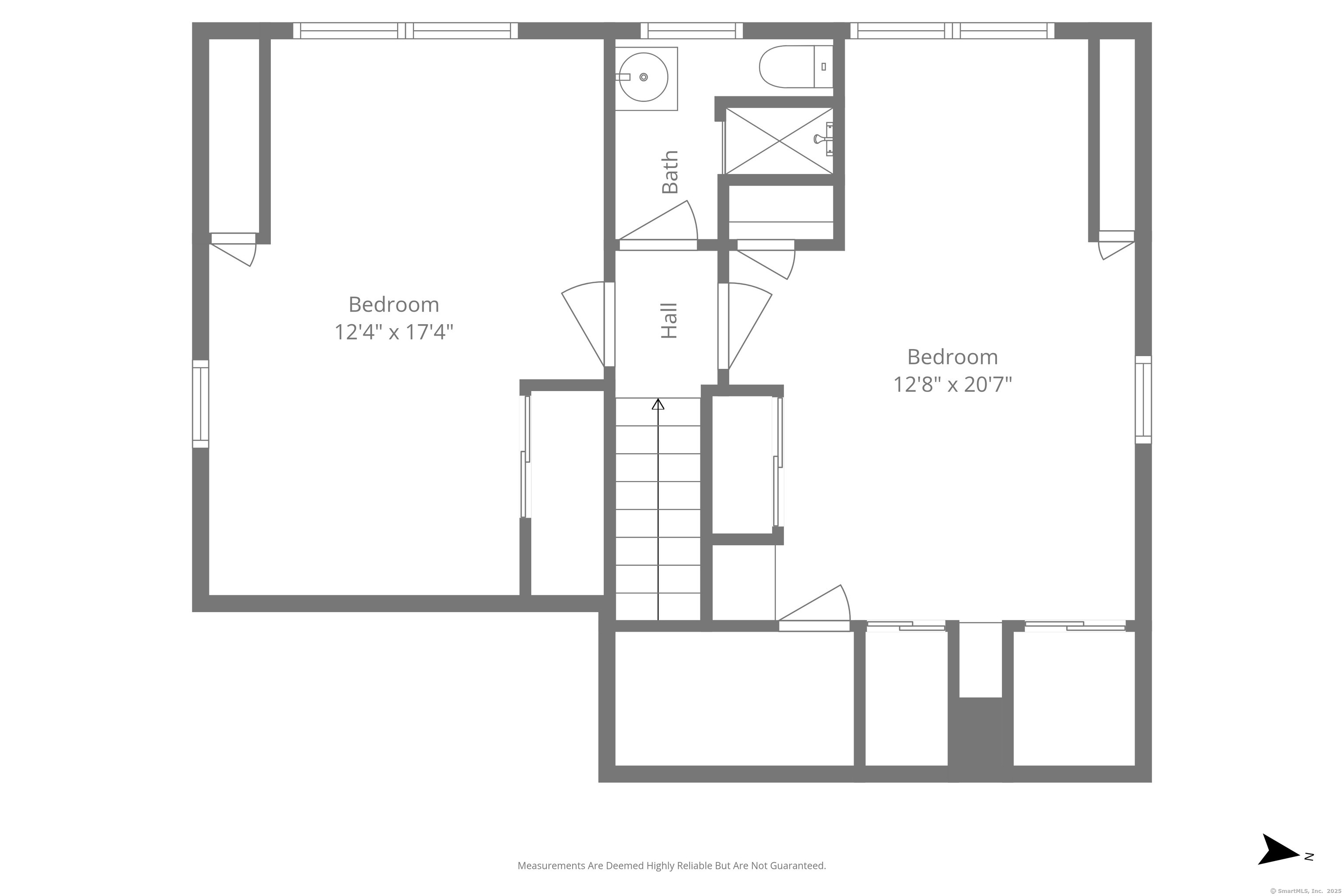
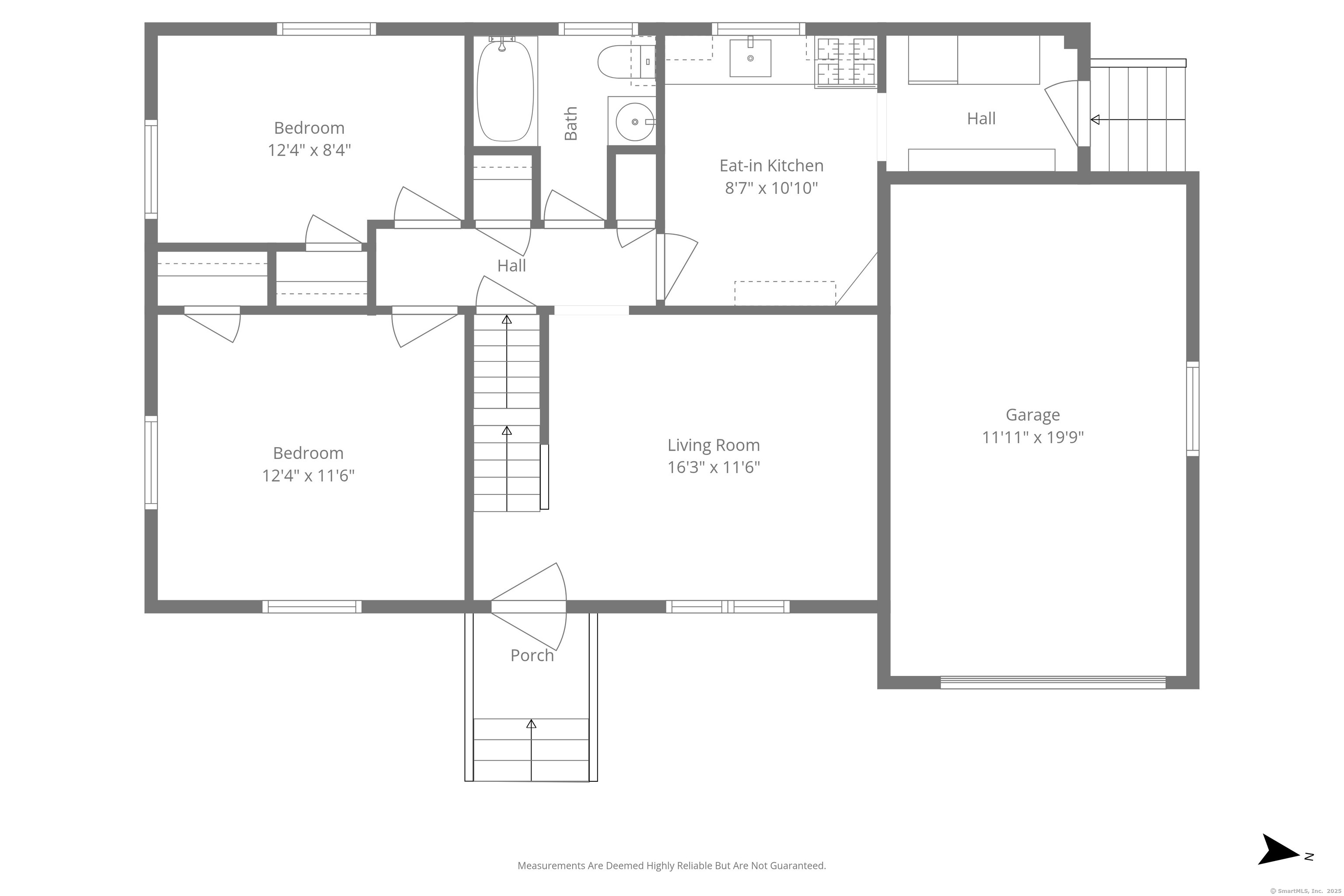
Offering this diamond in the rough with all the right bones. This laid-back 3-bedroom, 2-bath handyman special also offers a flex 4th room ideal as an extra bedroom, home office, or guest space. The star of the property is the absolutely beautiful, cleared, flat, fully fenced yard-made for outdoor entertaining, gardening, or giving your pups a safe place to roam. Inside, the floor plan is poised for your vision, with a full basement offering in-law/guest suite potential plus extra storage (buyer to verify permits). A one-car garage adds everyday convenience. Bring your contractor or roll up your sleeves-refresh the kitchens/baths, refinish floors, reimagine the lower level, and build instant equity. Whether you're an investor, first-time buyer ready to customize, or a move-up buyer hunting for value, this Spring Hill fixer-upper checks the boxes: location, yard, and expansion potential. Highlights: 3 BR + flex 4th, 2 BA, full basement w/ in-law potential, 1-car garage, flat fenced yard, prime Spring Hill, Norwalk CT address. Opportunity is knocking-answer with style.

Listing Courtesy of Keller Williams Prestige Prop.

Meet Our Team

Our team consists of dedicated real estate professionals passionate about helping our clients achieve their goals. Every client receives personalized attention, expert guidance, and unparalleled service. Meet our team:

Alison Malkin
Alison Malkin

Broker/Owner

860-214-8008

Email
Alison Malkin
Nicole Malkin James

Broker/Owner

843-614-7222

Email
Alison Malkin
Luis Torres

Associate Broker

860-383-5211

Email
Alison Malkin
Debra Pliego

Realtor®

860-919-7376

Email
Alison Malkin
Madison Wells

Realtor®

860-538-7567

Email
Alison Malkin
Lori Sierpinski

Realtor®

860-222-4692

Email
Alison Malkin
Jim Murkette

Realtor®

860-539-5009

Email
Alison Malkin
Leah Pliego

Realtor®

860-681-7373

Email
Alison Malkin
Shaissa Acosta

Realtor®

860-249-1641

Email

Acres : 0.27
Appliances Included : Gas Range, Refrigerator, Washer, Dryer
Basement : Full, Storage, Interior Access, Concrete Floor, Full With Walk-Out
Full Baths : 2
Baths Total : 2
Beds Total : 3
City : Norwalk
Cooling : Central Air
County : Fairfield
Elementary School : Kendall
Foundation : Block, Concrete
Garage Parking : Attached Garage, Paved, Driveway
Garage Slots : 1
Description : Treed, Dry, Level Lot
Middle School : Ponus Ridge
Amenities : Library, Public Transportation, Shopping/Mall, Walk to Bus Lines
Neighborhood : Spring Hill
Parcel : 248629
Total Parking Spaces : 2
Postal Code : 06850
Roof : Asphalt Shingle
Additional Room Information : Laundry Room
Sewage System : Public Sewer Connected
Total SqFt : 1308
Tax Year : July 2025-June 2026
Total Rooms : 6
Watersource : Public Water Connected
weeb : RPR, IDX Sites, Realtor.com

Phone

860-384-7624

Address

20 Hopmeadow St, Unit 821, Weatogue, CT 06089


© Copyright By Essentia Realty