Real Estate Agent in Connecticut and Western Massachusetts

1572 Saybrook Road
Haddam, Connecticut

Multi-Family For Sale

9

Total Rooms

Units

3,036

Sq Ft

$ 1,320,000

Price

1572 Saybrook Road
Haddam, Connecticut

Haddam, Connecticut

Description:

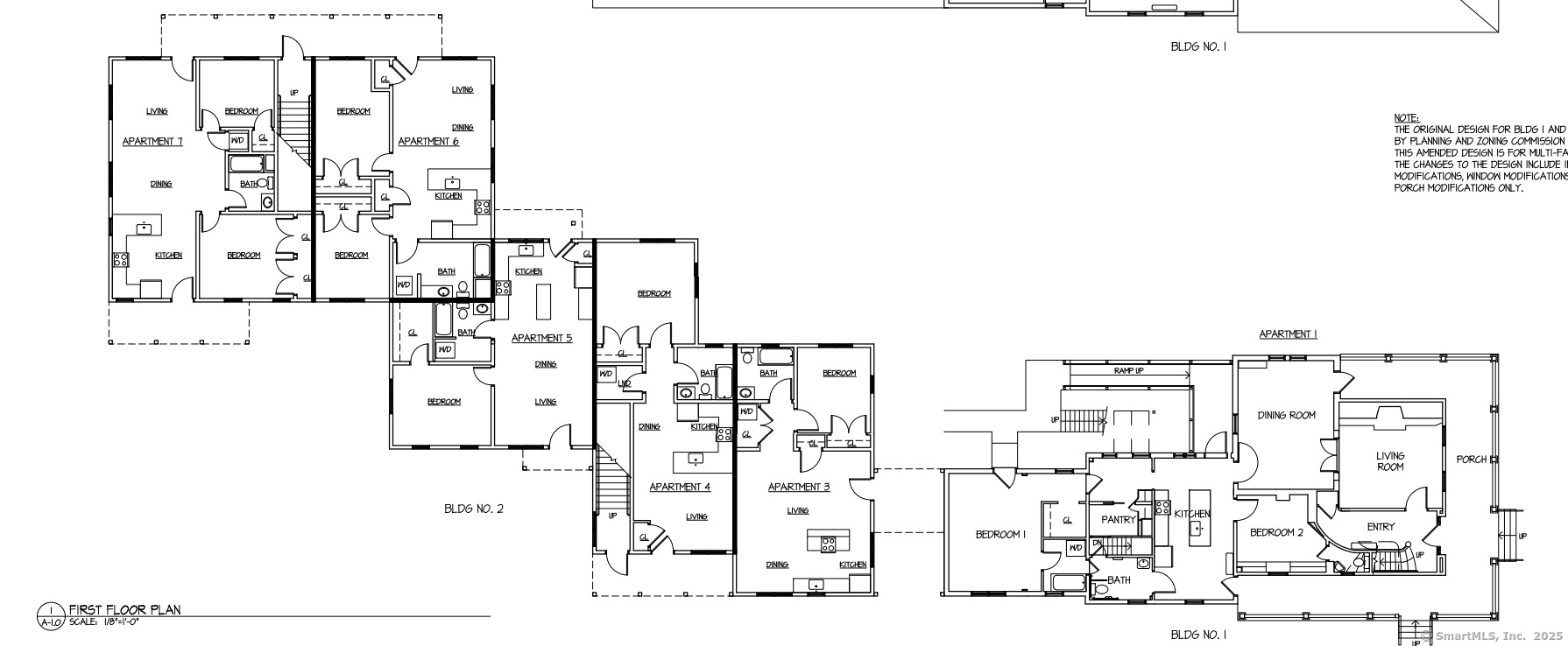
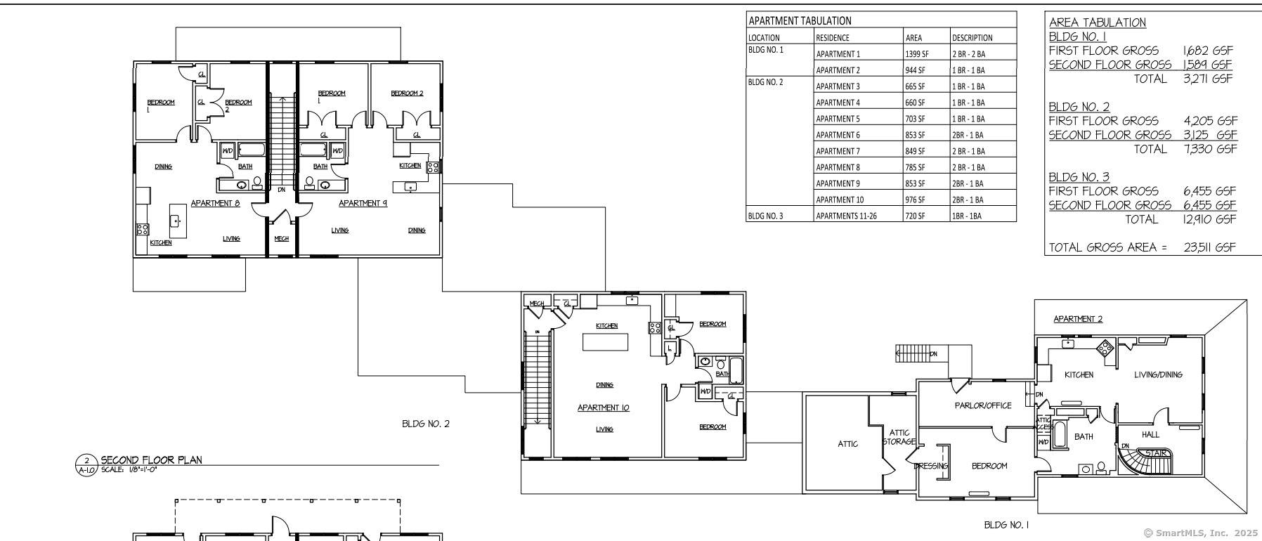
Unique Investment Opportunity! Discover this charming antique two-family home with timeless appeal, featuring a welcoming wraparound porch. Zoned for residential or commercial use, the property also comes with special permit approvals for 24 additional units, creating endless potential. Set on two lots totaling 1.26 acres, this rare offering provides flexibility to purchase together, separately, or develop in phases. A truly special opportunity for investors, developers, or owner-occupants alike!

Listing Courtesy of Re/Max Valley Shore

Meet Our Team

Our team consists of dedicated real estate professionals passionate about helping our clients achieve their goals. Every client receives personalized attention, expert guidance, and unparalleled service. Meet our team:

Alison Malkin
Alison Malkin

Broker/Owner

860-214-8008

Email
Alison Malkin
Nicole Malkin James

Broker/Owner

843-614-7222

Email
Alison Malkin
Luis Torres

Associate Broker

860-383-5211

Email
Alison Malkin
Debra Pliego

Realtor®

860-919-7376

Email
Alison Malkin
Madison Wells

Realtor®

860-538-7567

Email
Alison Malkin
Lori Sierpinski

Realtor®

860-222-4692

Email
Alison Malkin
Jim Murkette

Realtor®

860-539-5009

Email
Alison Malkin
Leah Pliego

Realtor®

860-681-7373

Email
Alison Malkin
Shaissa Acosta

Realtor®

860-249-1641

Email

Acres : 1.13
Attic : Walk-up
Basement : Full, Unfinished
Full Baths : 2
Half Baths : 1
Baths Total : 3
Beds Total : 4
City : Haddam
Cooling : None
County : Middlesex
Elementary School : Per Board of Ed
Fireplaces : 2
Foundation : Stone
Fuel Tank Location : In Basement
Garage Parking : None, Unpaved
Description : Level Lot
Neighborhood : N/A
Parcel : 993227
Total Parking Spaces : 2
Postal Code : 06438
Roof : Asphalt Shingle
Sewage System : Public Sewer Connected
Total SqFt : 3036
Tax Year : July 2025-June 2026
Total Rooms : 9
Watersource : Public Water Connected
weeb : RPR, IDX Sites, Realtor.com

Phone

860-384-7624

Address

20 Hopmeadow St, Unit 821, Weatogue, CT 06089


© Copyright By Essentia Realty