Real Estate Agent in Connecticut and Western Massachusetts

1451 Diamond Lake Road
Glastonbury, Connecticut

Single Family For Sale

4

Bedrooms

3 (full) / 1 (half)

Bathrooms

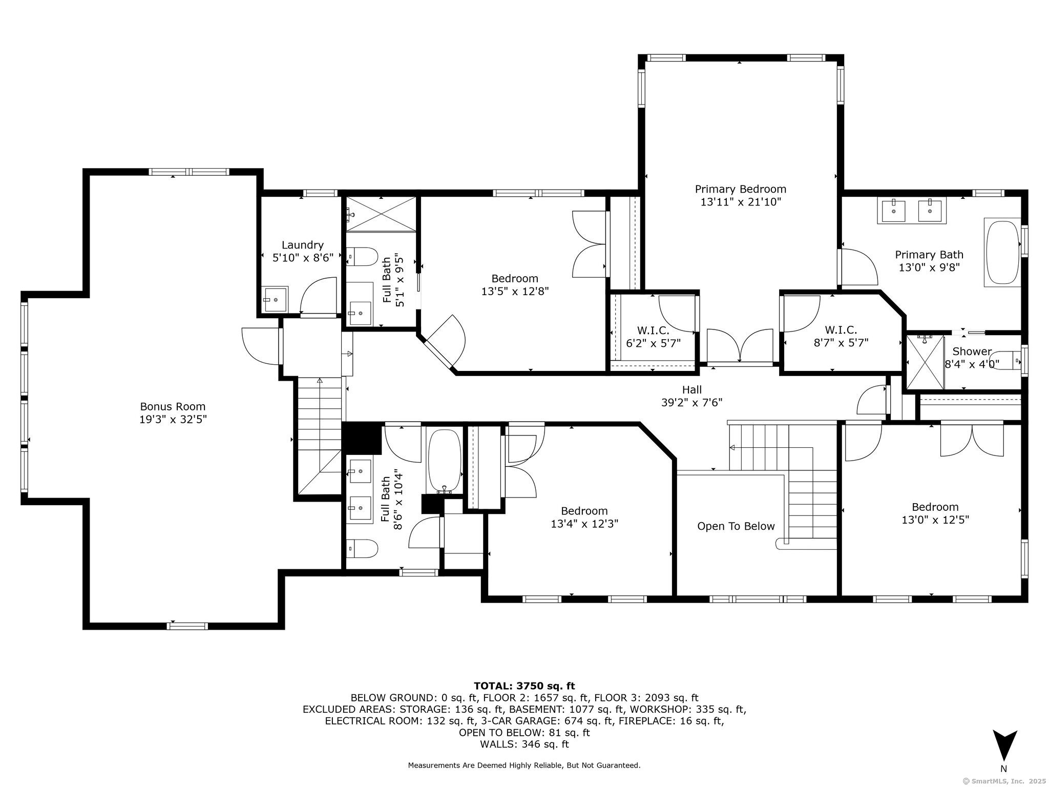
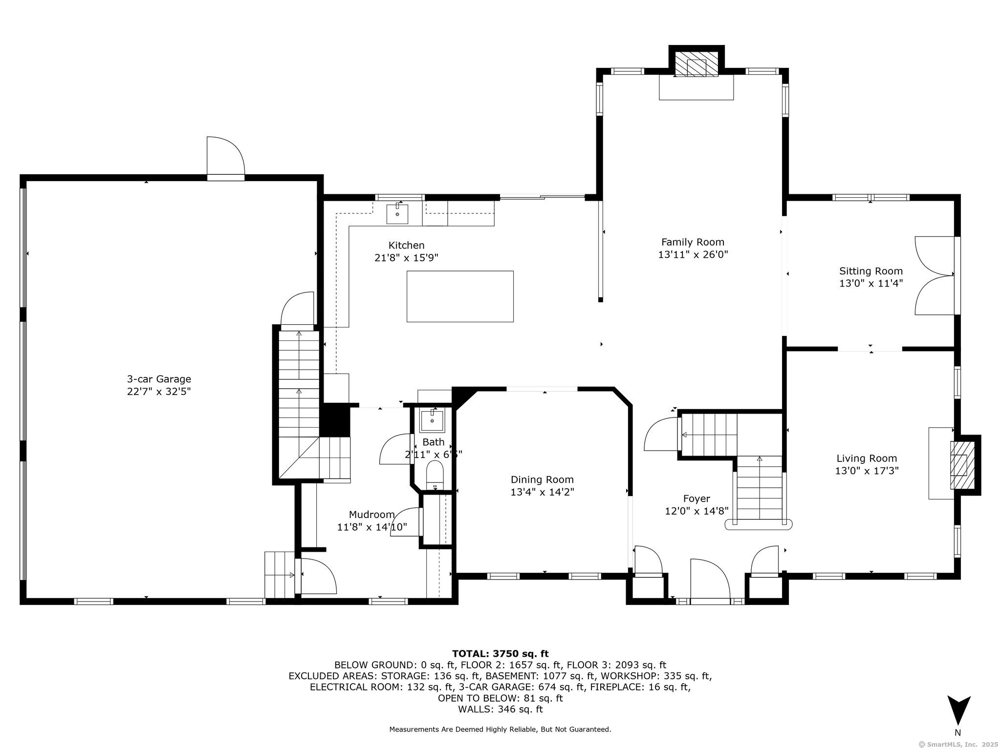
3,820

Sq Ft

$ 888,888

Price

1451 Diamond Lake Road
Glastonbury, Connecticut

Glastonbury, Connecticut

Description:

---- Extensively updated 4 Bedroom, 3.5 Bathroom, 3,820 Sq Ft home with an oversized 3-Car Garage ---- Recent seller upgrades and improvements include a new kitchen with Fabuwood semi-custom cabinetry, natural quartz countertops, stainless steel appliances, ceramic tile backsplash, and new hardware; all new bathrooms with updated flooring, tubs/shower pans, lighting, accessories, shower enclosures, vanities, and tile; new Berber carpet in all bedrooms and bonus room; complete interior refinish, including ceilings, trim, and; Refinished hardwood flooring throughout and new hardwood added in kitchen, primary bedroom, and; new LED lighting throughout; new door hardware and knobs; new stone fireplace surrounds and hearths; partial driveway replacement; new front paver walkway and landscaping; 5,000 sq. ft. of new backyard sod; new water heater (2025); new overhead garage door and operator and existing doors and operators serviced. Updates completed 2017 or newer include all-wood cedar siding and windows replaced, complete roof replacement, blown-in insulation, full HVAC replacement by Degree of Glastonbury, garage doors and epoxy garage floor, epoxy basement floor and walls, addition of two TimberTech decks and Black aluminum decorative fencing, updated electrical system and Gillette 25kW propane generator installed, 500-gallon buried propane tank (leased), and water filtration system. Two words. Turn key.

Listing Courtesy of Eagle Eye Realty PLLC

Meet Our Team

Our team consists of dedicated real estate professionals passionate about helping our clients achieve their goals. Every client receives personalized attention, expert guidance, and unparalleled service. Meet our team:

Alison Malkin
Alison Malkin

Broker/Owner

860-214-8008

Email
Alison Malkin
Nicole Malkin James

Broker/Owner

843-614-7222

Email
Alison Malkin
Luis Torres

Associate Broker

860-383-5211

Email
Alison Malkin
Debra Pliego

Realtor®

860-919-7376

Email
Alison Malkin
Madison Wells

Realtor®

860-538-7567

Email
Alison Malkin
Lori Sierpinski

Realtor®

860-222-4692

Email
Alison Malkin
Jim Murkette

Realtor®

860-539-5009

Email
Alison Malkin
Leah Pliego

Realtor®

860-681-7373

Email
Alison Malkin
Shaissa Acosta

Realtor®

860-249-1641

Email

Acres : 1.05
Appliances Included : Oven/Range, Microwave, Range Hood, Refrigerator, Dishwasher
Association Fee Includes : Insurance
Attic : Unfinished, Storage Space, Access Via Hatch
Basement : Full, Unfinished, Concrete Floor, Full With Walk-Out
Full Baths : 3
Half Baths : 1
Baths Total : 4
Beds Total : 4
City : Glastonbury
Cooling : Central Air
County : Hartford
Elementary School : Hopewell
Fireplaces : 3
Foundation : Concrete
Fuel Tank Location : In Ground
Garage Parking : Attached Garage
Garage Slots : 3
Description : Professionally Landscaped
Middle School : Smith
Neighborhood : Diamond Lake
Parcel : 567245
Postal Code : 06033
Roof : Asphalt Shingle
Additional Room Information : Foyer, Laundry Room, Mud Room
Sewage System : Septic
SgFt Description : Bonus room is 790 sq ft
Total SqFt : 3820
Subdivison : Balmoral
Tax Year : July 2025-June 2026
Total Rooms : 10
Watersource : Private Well
weeb : RPR, IDX Sites, Realtor.com

Phone

860-384-7624

Address

20 Hopmeadow St, Unit 821, Weatogue, CT 06089


© Copyright By Essentia Realty