Real Estate Agent in Connecticut and Western Massachusetts

111 Federal Street
Bristol, Connecticut

Multi-Family For Sale

14

Total Rooms

Units

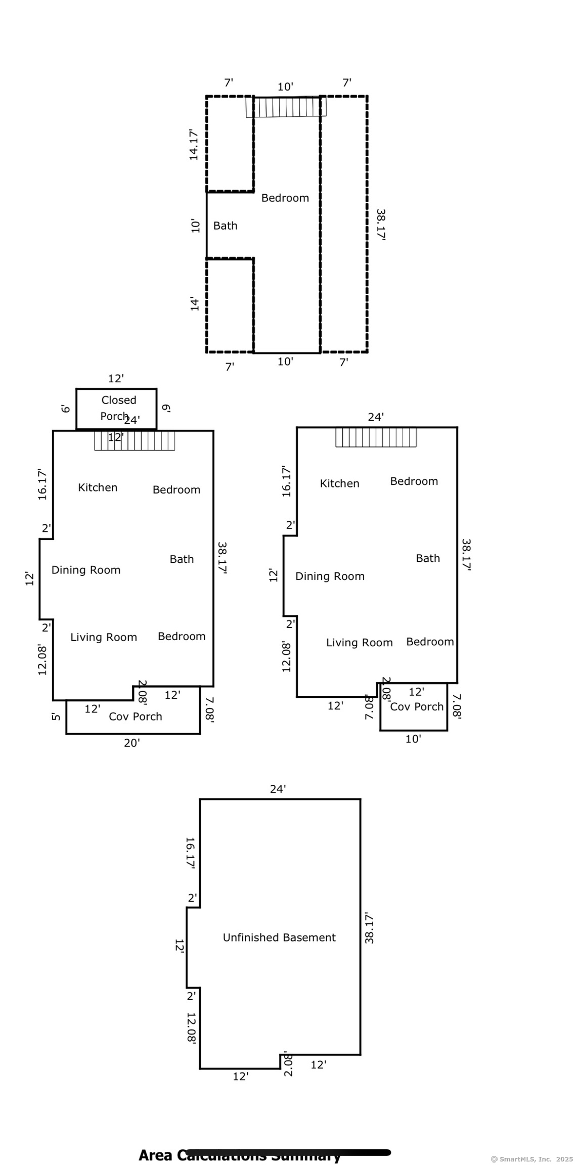
2,112

Sq Ft

$ 389,000

Price

111 Federal Street
Bristol, Connecticut

Bristol, Connecticut

Description:

Fully Leased 2-Family with Finished Attic space! Investors take notice-111 Federal St is a two-family with a finished third floor offering excellent income potential. All units are currently leased, making this a turnkey investment with steady cash flow from day one. All units have had renovations, updated kitchen flooring, quartz counter tops, New kitchen appliances, new washer/dryer, updated electrical and fixtures, renovated bathrooms featuring new floor tile, vanity, mirror, and new flooring throughout. The finished third floor provides added versatility for extra rental income or future expansion. Conveniently located near shops, parks, and major routes, this property delivers strong rental performance and long-term upside in the heart of Bristol.

Listing Courtesy of Yellowbrick Real Estate LLC

Meet Our Team

Our team consists of dedicated real estate professionals passionate about helping our clients achieve their goals. Every client receives personalized attention, expert guidance, and unparalleled service. Meet our team:

Alison Malkin
Alison Malkin

Broker/Owner

860-214-8008

Email
Alison Malkin
Nicole Malkin James

Broker/Owner

843-614-7222

Email
Alison Malkin
Luis Torres

Associate Broker

860-383-5211

Email
Alison Malkin
Debra Pliego

Realtor®

860-919-7376

Email
Alison Malkin
Madison Wells

Realtor®

860-538-7567

Email
Alison Malkin
Lori Sierpinski

Realtor®

860-222-4692

Email
Alison Malkin
Jim Murkette

Realtor®

860-539-5009

Email
Alison Malkin
Leah Pliego

Realtor®

860-681-7373

Email
Alison Malkin
Shaissa Acosta

Realtor®

860-249-1641

Email

Acres : 0.1
Attic : Finished, Walk-up
Basement : Full, Unfinished
Full Baths : 3
Baths Total : 3
Beds Total : 5
City : Bristol
Cooling : Wall Unit
County : Hartford
Elementary School : Per Board of Ed
Foundation : Stone
Garage Parking : None, Other
Description : N/A
Neighborhood : N/A
Parcel : 473135
Total Parking Spaces : 3
Postal Code : 06010
Roof : Asphalt Shingle
Sewage System : Public Sewer In Street
Total SqFt : 2112
Tax Year : July 2025-June 2026
Total Rooms : 14
Watersource : Public Water Connected
weeb : RPR, IDX Sites, Realtor.com

Phone

860-384-7624

Address

20 Hopmeadow St, Unit 821, Weatogue, CT 06089


© Copyright By Essentia Realty