Real Estate Agent in Connecticut and Western Massachusetts

56 Drake Lane
Fairfield, Connecticut

Single Family For Sale

4

Bedrooms

2 (full) / 1 (half)

Bathrooms

2,099

Sq Ft

$ 949,000

Price

56 Drake Lane
Fairfield, Connecticut

Fairfield, Connecticut

Description:

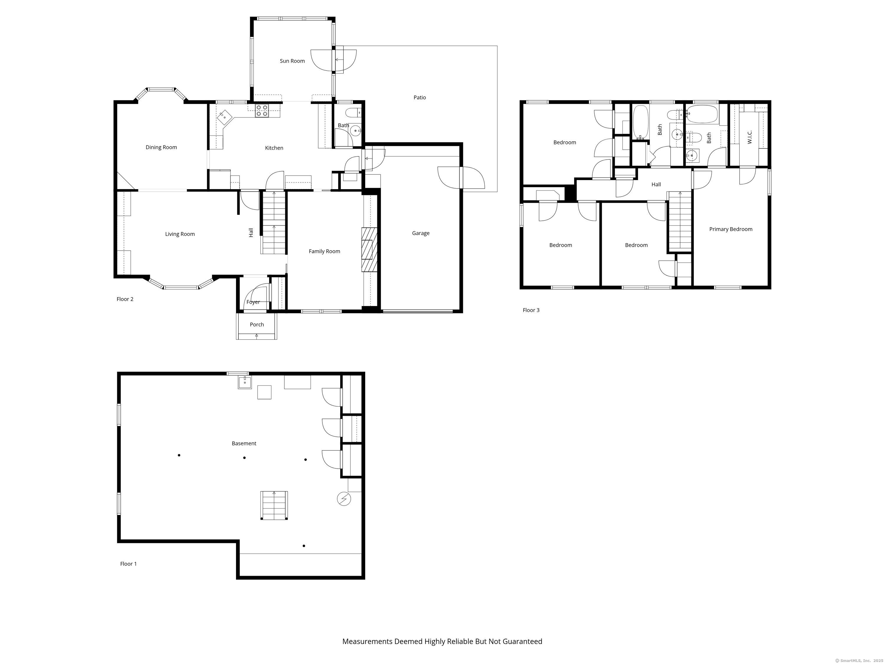
This well-loved colonial in the Fairfield University neighborhood offers a rare opportunity to own a classic home in a prime location. Cherished by one owner for the past 40 years, it's ready for new memories to be made. Step inside to find a fantastic circular flow, generous room sizes, and timeless updates throughout. The formal living and dining rooms feature built-ins, hardwood floors, a bay window and elegant molding details. An open kitchen with maple cabinetry, granite countertops, and a light-filled sunroom leads out to a bluestone patio and a private, fully fenced yard - perfect for entertaining or relaxing. The cozy family room, complete with vintage wood paneling and a gas fireplace, invites quiet evenings spent streaming your favorite shows or unwinding with a great book. Upstairs, you'll find four well-proportioned bedrooms with well-designed closets and two full baths. The large basement offers endless potential; finish it for a playroom, gym, or additional living space. An attached garage and separate shed provide ample storage. Bordering Greenfield Hill, this property combines charm, convenience, and tranquility in one of Fairfield's most under-the-radar, long standing neighborhoods.

Listing Courtesy of Compass Connecticut, LLC

Meet Our Team

Our team consists of dedicated real estate professionals passionate about helping our clients achieve their goals. Every client receives personalized attention, expert guidance, and unparalleled service. Meet our team:

Alison Malkin
Alison Malkin

Broker/Owner

860-214-8008

Email
Alison Malkin
Nicole Malkin James

Broker/Owner

843-614-7222

Email
Alison Malkin
Luis Torres

Associate Broker

860-383-5211

Email
Alison Malkin
Debra Pliego

Realtor®

860-919-7376

Email
Alison Malkin
Madison Wells

Realtor®

860-538-7567

Email
Alison Malkin
Lori Sierpinski

Realtor®

860-222-4692

Email
Alison Malkin
Jim Murkette

Realtor®

860-539-5009

Email
Alison Malkin
Leah Pliego

Realtor®

860-681-7373

Email
Alison Malkin
Shaissa Acosta

Realtor®

860-249-1641

Email

Acres : 0.22
Appliances Included : Oven/Range, Microwave, Refrigerator, Dishwasher, Washer, Dryer
Attic : Access Via Hatch
Basement : Full, Storage, Interior Access, Concrete Floor
Full Baths : 2
Half Baths : 1
Baths Total : 3
Beds Total : 4
City : Fairfield
Cooling : Central Air
County : Fairfield
Elementary School : Riverfield
Fireplaces : 1
Foundation : Block, Concrete
Garage Parking : Attached Garage
Garage Slots : 1
Description : Treed, Dry, Level Lot, Professionally Landscaped
Middle School : Roger Ludlowe
Neighborhood : University
Parcel : 129310
Postal Code : 06824
Roof : Asphalt Shingle
Additional Room Information : Foyer
Sewage System : Public Sewer Connected
Total SqFt : 2099
Tax Year : July 2025-June 2026
Total Rooms : 9
Watersource : Public Water Connected
weeb : RPR, IDX Sites, Realtor.com

Phone

860-384-7624

Address

20 Hopmeadow St, Unit 821, Weatogue, CT 06089


© Copyright By Essentia Realty