Real Estate Agent in Connecticut and Western Massachusetts

325 Lafayette Street
Bridgeport, Connecticut

Residential Rental

1

Bedrooms

1 (full) / 0 (half)

Bathrooms

832

Sq Ft

$ 1,750

Per Month

325 Lafayette Street
Bridgeport, Connecticut - 8102

Bridgeport, Connecticut

Description:

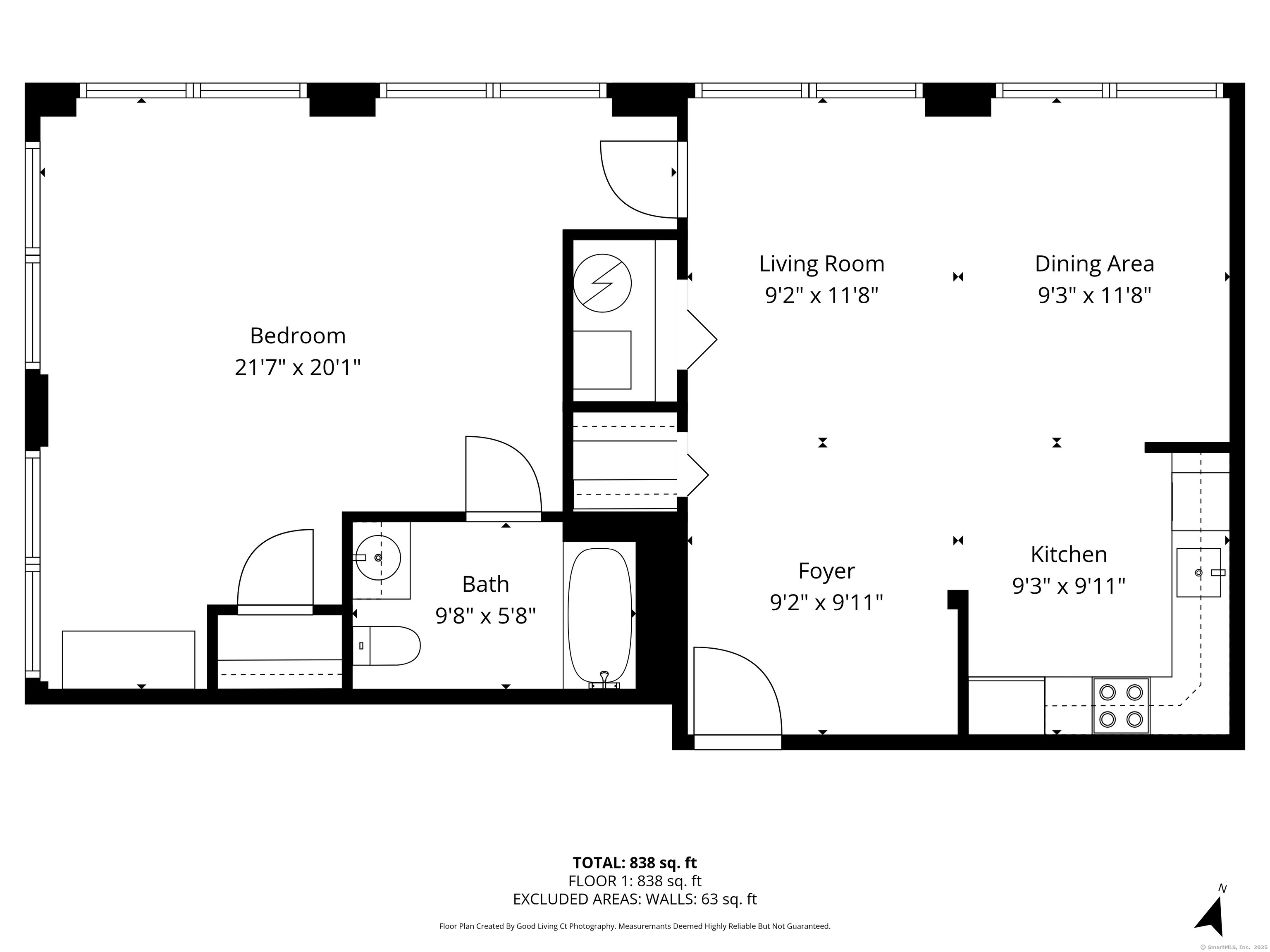
Experience classic loft living in this expansive 1-bedroom, 1-bath condo at The Lofts on Lafayette, offering 832 sq ft of open-concept space. Soaring 10'+ ceilings, original hardwood floors, and exposed ductwork frame a sunlit layout featuring oversized windows and authentic brick walls throughout. The spacious kitchen includes laminate countertops, stainless steel appliances, and natural wood cabinetry, flowing into distinct dining and living zones. The massive bedroom (21'7" x 20'1") provides flexible layout options for a home office, fitness nook, or studio space. A full bath with tub/shower combo and open shelving completes the interior. Central air ensures year-round comfort. Located in Building 8 on the first floor, this unit includes 1 assigned parking space and access to a coin-operated laundry room on the lower level. Pet-friendly community (under 40 lbs; no dangerous breeds - must ask). Just 0.4 mi to Seaside Park, University of Bridgeport, Metro-North station, I-95 access, and coffee shops. Welcome to industrial loft living in the heart of Bridgeport's South End. Industrial loft * Exposed brick + oversized windows * 0.4 mi to Seaside Park + Metro-North

Listing Courtesy of BHGRE Gaetano Marra Homes

Meet Our Team

Our team consists of dedicated real estate professionals passionate about helping our clients achieve their goals. Every client receives personalized attention, expert guidance, and unparalleled service. Meet our team:

Alison Malkin
Alison Malkin

Broker/Owner

860-214-8008

Email
Alison Malkin
Nicole Malkin James

Broker/Owner

843-614-7222

Email
Alison Malkin
Luis Torres

Associate Broker

860-383-5211

Email
Alison Malkin
Debra Pliego

Realtor®

860-919-7376

Email
Alison Malkin
Madison Wells

Realtor®

860-538-7567

Email
Alison Malkin
Lori Sierpinski

Realtor®

860-222-4692

Email
Alison Malkin
Jim Murkette

Realtor®

860-539-5009

Email
Alison Malkin
Leah Pliego

Realtor®

860-681-7373

Email
Alison Malkin
Shaissa Acosta

Realtor®

860-249-1641

Email

Appliances Included : Oven/Range, Refrigerator
Basement : None
Full Baths : 1
Baths Total : 1
Beds Total : 1
City : Bridgeport
Complex : Lofts on Lafayette
Cooling : Central Air
County : Fairfield
Elementary School : Roosevelt
Flood Zone : 1
Garage Parking : None, Paved, Parking Lot, Assigned Parking
Description : Level Lot
Neighborhood : South End
Parcel : 2476028
Total Parking Spaces : 1
Pets : small pet may be consider
Pets Allowed : Restrictions
Postal Code : 06604
Sewage System : Public Sewer Connected
Total SqFt : 832
Total Rooms : 3
Watersource : Public Water Connected
weeb : RPR, IDX Sites, Realtor.com

Phone

860-384-7624

Address

20 Hopmeadow St, Unit 821, Weatogue, CT 06089


© Copyright By Essentia Realty