Real Estate Agent in Connecticut and Western Massachusetts

4143 Main Street
Bridgeport, Connecticut

Commercial For Sale

Municipal Street
Electric, Gas, Telephone, Cable
4,240

Sq Ft

$ 879,900

Price

4143 Main Street
Bridgeport, Connecticut

Bridgeport, Connecticut

Description:

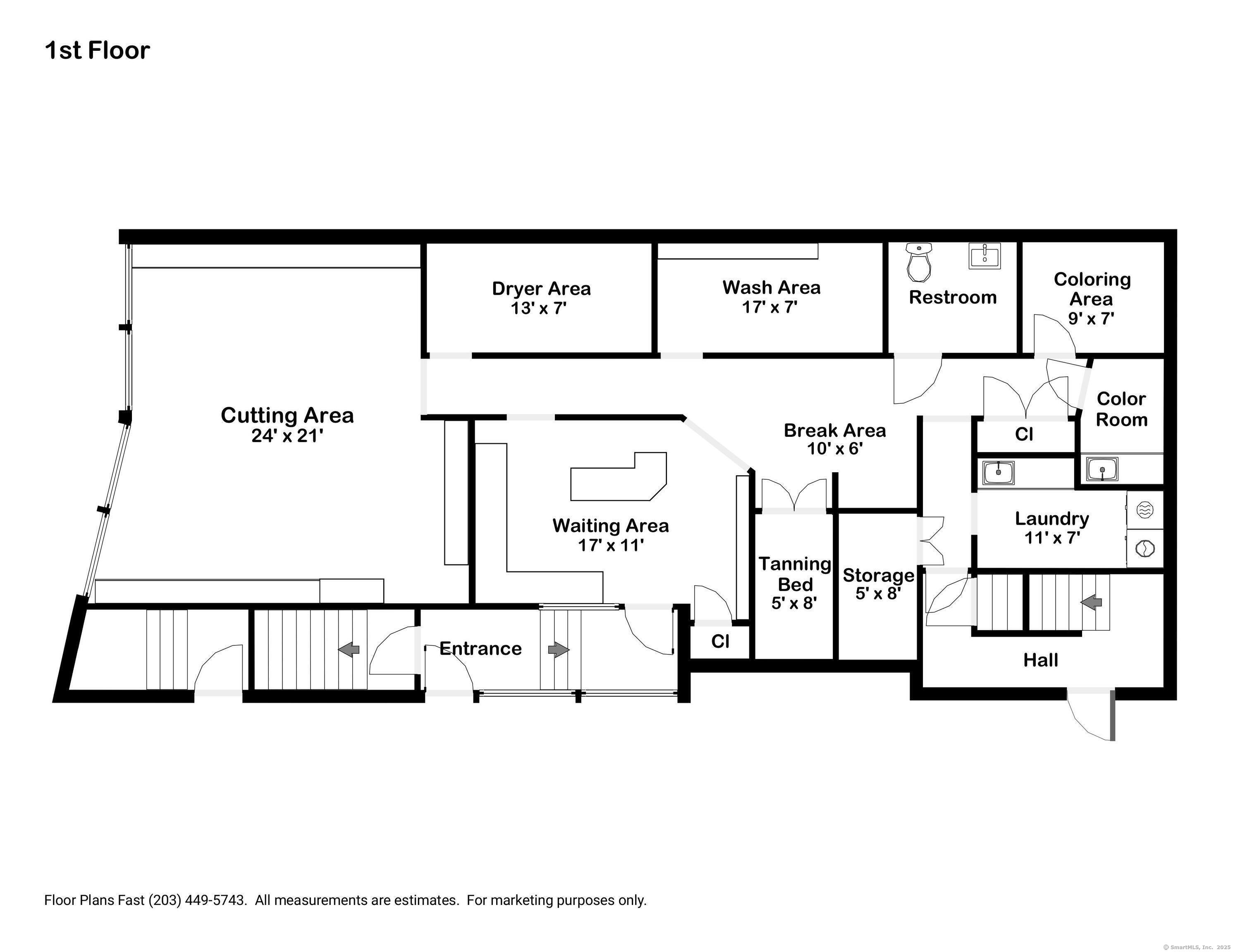
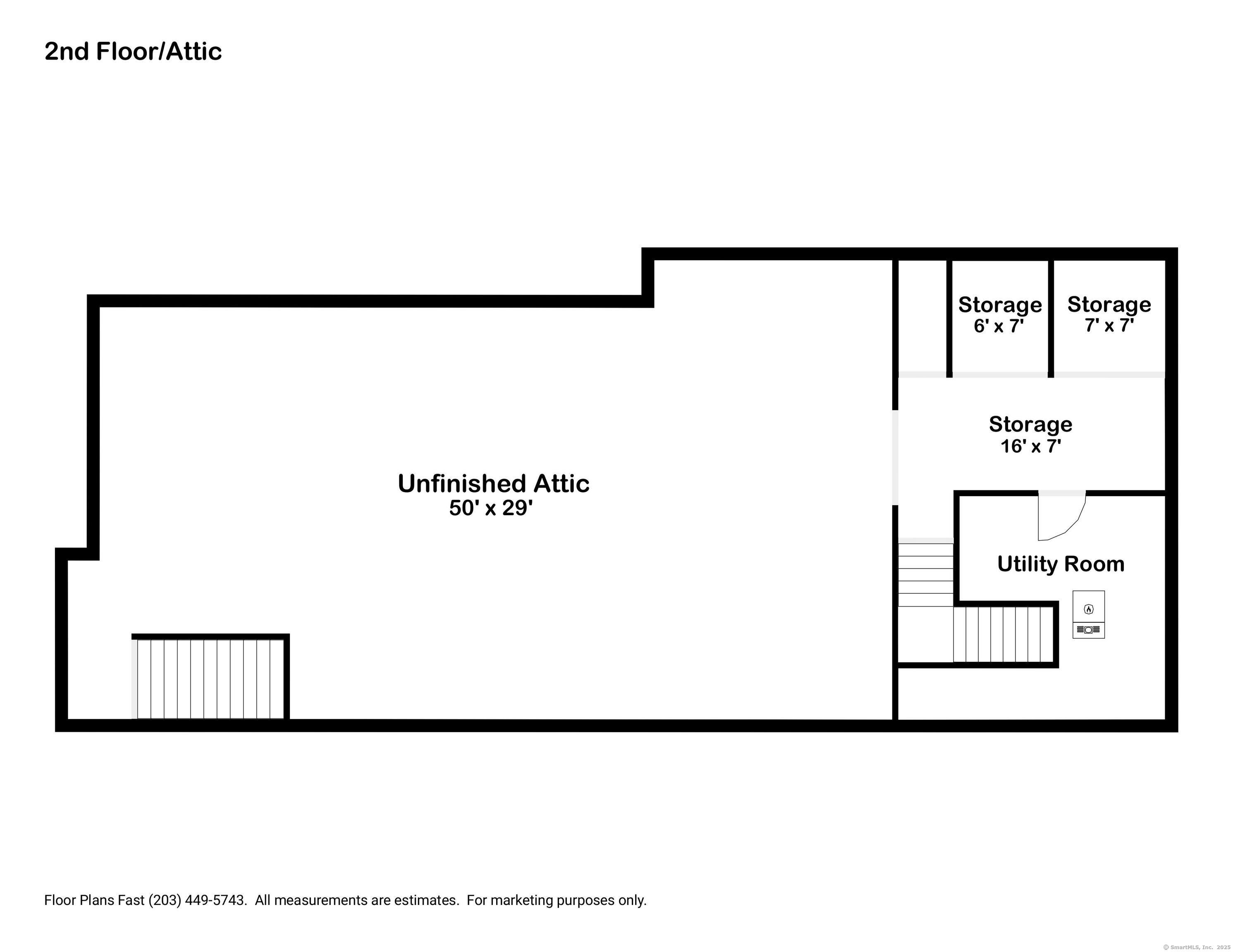
This property is situated on a corner lot and is perfect for a drive thru for fast food or almost anything else with some of the most iconic brands such as Dunkin Donuts, McDonald's, KFC, Burger King, Walgreens, AutoZone, Valvoline, & Town Fair tire all in a 1 block radius. Starbuck, Stop & Shop, Price Rite, CVS, Optimum & many bars & Restaurants all in a 5 block Radius. This will be the 2nd time in 67 years that this property has gone for sale. MAIN LEVEL FEATURES { Finished square footage total 1,330 : Cutting Area ( 504 square feet ) 24 x 21 : Dryer Area ( 91 square feet ) 13 x 7 : Washing Area ( 119 square feet ) 17 x 7 : Restroom ( 35 square feet ) 7 x 5 : Coloring Area ( 42 square feet ) 7 x 6 : Color Room ( 35 square feet ) 7 x 5 : Laundry ( 66 square feet ) 11 x 6 : Break Area ( 60 square feet ) 10 x 6 : Tanning Beds ( 40 square feet ) 8 x 5 : Storage ( 25 square feet ) 5 x 5 : Waiting Area ( 187 square feet ) 17 x 11 }. UPPER LEVEL { Unfinished total square footage 1703 : ( 1,450 square feet ) 50 x 29 : Storage 1 ( 112 square feet ) 16 x 7 : Storage 1 ( 49 square feet ) 7 x 7 : Storage 2 ( 42 square feet ) 7 x 6 }. LOWER LEVEL { Semi finished total square footage 1551 : Storage 1 ( 1,100 square feet ) 50 x 22 : Storage 2 ( 221 square feet ) 17 x 13 : Storage 3 ( 120 square feet ) 15 x 8 }. EXTERIOR FEATURS { Handicap Ramps : Parking for 12 cars : Enclosed Entrance }.

Listing Courtesy of RE/MAX Right Choice

Meet Our Team

Our team consists of dedicated real estate professionals passionate about helping our clients achieve their goals. Every client receives personalized attention, expert guidance, and unparalleled service. Meet our team:

Alison Malkin
Alison Malkin

Broker/Owner

860-214-8008

Email
Alison Malkin
Nicole Malkin James

Broker/Owner

843-614-7222

Email
Alison Malkin
Luis Torres

Associate Broker

860-383-5211

Email
Alison Malkin
Debra Pliego

Realtor®

860-919-7376

Email
Alison Malkin
Madison Wells

Realtor®

860-538-7567

Email
Alison Malkin
Lori Sierpinski

Realtor®

860-222-4692

Email
Alison Malkin
Jim Murkette

Realtor®

860-539-5009

Email
Alison Malkin
Leah Pliego

Realtor®

860-681-7373

Email

Acres : 0.11
Ceiling Height : 10
City : Bridgeport
Cooling : Central Air
County : Fairfield
Flooring : Slate, Tile
Foundation : Block, Concrete
Garage Parking : Paved, Parking Lot, Off Street Parking
Description : Corner Lot, Level Lot
Neighborhood : North End
# Restrooms : 2
# Stories : 3
# Tenants : 1
Parcel : 33979
Uncovered Parking Spaces : 11
Total Parking Spaces : 11
Postal Code : 06606
Roof : Flat, Rubber
Sewage System : Public Sewer Connected
Office SqFt : 1980
Retail SqFt : 2009
Total SqFt : 4240
Tax Year : July 2025-June 2026
Watersource : Public Water Connected
weeb : RPR, IDX Sites, Realtor.com

Phone

860-384-7624

Address

20 Hopmeadow St, Unit 821, Weatogue, CT 06089


© Copyright By Essentia Realty