Real Estate Agent in Connecticut and Western Massachusetts

23 Main Street
East Haddam, Connecticut

Multi-Family For Sale

18

Total Rooms

Units

2,942

Sq Ft

$ 1,090,000

Price

23 Main Street
East Haddam, Connecticut

East Haddam, Connecticut

Description:

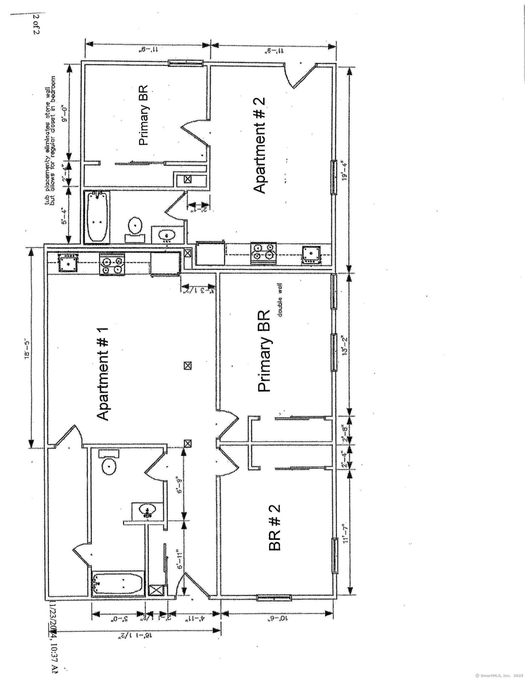
Completely remodeled inside in 2025, this historic building has the potential for multiple uses. It was approved as a tavern on the first floor, and B+B units on the 2nd and 3rd floor or long term rentals. but can be easily adapted into a number of different uses, including commercial. Currently it has been adapted into gorgeous, modern residential units, With a two-bedroom unit, 4 one-bedroom standard units, and a palatial penthouse suite (including a loft space). Includes one ADA-compliant handicapped accessible unit with separate entryway w/ adjacent parking, roll-up/under countertop, and accessible bathroom. Parking lot includes EV charging station. Brand new well and all new mechanical systems. This is not a stereotypical investment property and a P+L could vary a lot. It depends on how an owner chooses to use. Happy to discuss. Owner is licensed real estate agent.

Listing Courtesy of Sunset Creek Realty, LLC

Meet Our Team

Our team consists of dedicated real estate professionals passionate about helping our clients achieve their goals. Every client receives personalized attention, expert guidance, and unparalleled service. Meet our team:

Alison Malkin
Alison Malkin

Broker/Owner

860-214-8008

Email
Alison Malkin
Nicole Malkin James

Broker/Owner

843-614-7222

Email
Alison Malkin
Luis Torres

Associate Broker

860-383-5211

Email
Alison Malkin
Debra Pliego

Realtor®

860-919-7376

Email
Alison Malkin
Madison Wells

Realtor®

860-538-7567

Email
Alison Malkin
Lori Sierpinski

Realtor®

860-222-4692

Email
Alison Malkin
Jim Murkette

Realtor®

860-539-5009

Email
Alison Malkin
Leah Pliego

Realtor®

860-681-7373

Email

Acres : 0.47
Basement : Full, Fully Finished, Walk-out, Liveable Space
Full Baths : 6
Baths Total : 6
Beds Total : 7
City : East Haddam
Cooling : Heat Pump
County : Middlesex
Elementary School : East Haddam
Foundation : Stone
Garage Parking : Parking Lot
Handicap : Handicap Parking, Multiple Entries/Exits
Description : Sloping Lot, Water View
Neighborhood : East Haddam Landing
Parcel : 2268908
Total Parking Spaces : 12
Postal Code : 06423
Roof : Asphalt Shingle
Sewage System : Public Sewer Connected
SgFt Description : ENTIRE building was completely redone, expanded into all usable space
Total SqFt : 2942
Tax Year : July 2025-June 2026
Total Rooms : 18
Watersource : Private Well
weeb : RPR, IDX Sites, Realtor.com

Phone

860-384-7624

Address

20 Hopmeadow St, Unit 821, Weatogue, CT 06089


© Copyright By Essentia Realty