Real Estate Agent in Connecticut and Western Massachusetts

115 Technology Drive
Trumbull, Connecticut

Commercial For Lease

Credit Check,References Required,Security Deposit,Lease Required,Net-Net-Net Lease
Five Years,Flexible Lease Terms
1,995

Sq Ft

$ 16

Per SqFt/Per Year

115 Technology Drive
Trumbull, Connecticut

Trumbull, Connecticut

Description:

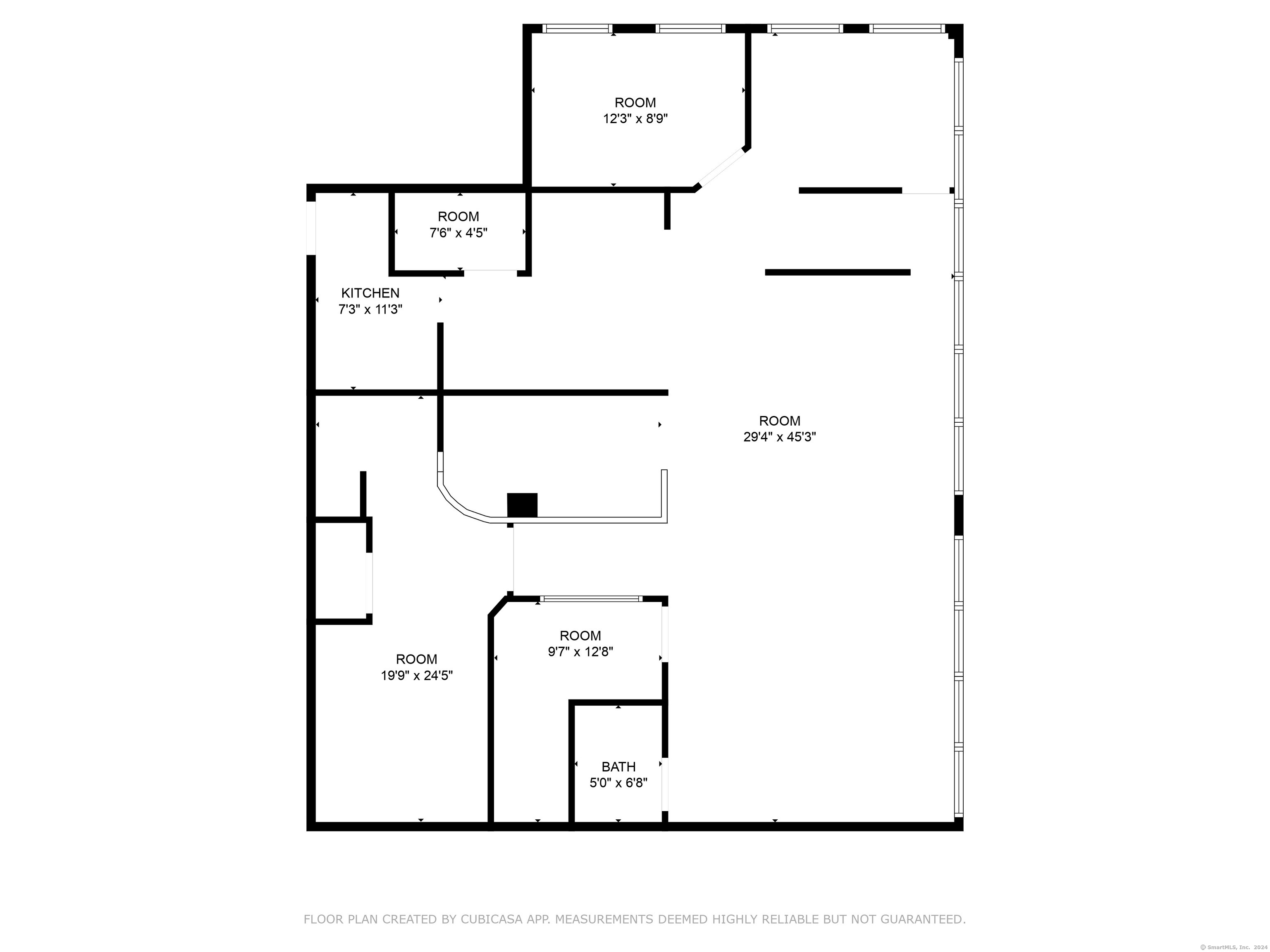
Discover this custom-designed prime 1,995 SF corner office space, now available for lease in the prestigious Trumbull Professional Center. The spacious open office area is equipped with a plumbing line beneath brand-new flooring, making it ideal for medical or dental use. If plumbing is not a necessity office can easily accommodate any other use. A private exam room comes complete with a sink and cabinetry, while an open lab area conveniently leads to a compact kitchen with a refrigerator and wall-mounted cabinets. The unit is pre-wired for a sound system and includes a private office with additional wall cabinetry and a designated file area. This unit also offers a welcoming waiting room and an open reception area featuring granite countertops, cabinetry, and modern track lighting. The space is one of the few in the building that features its own private lavatory with a new toilet. LED lighting throughout, solid wood doors, a sprinkler system, and central air conditioning make for optimal comfort. Conveniently located just a few minutes from the intersection of the Route 25 Expressway and Route 111, this facility offers unparalleled access and visibility. *Ample parking* *Please see agent remarks**Landlord open to 1-2 months of free rent at start of lease*

Listing Courtesy of William Raveis Real Estate

Meet Our Team

Our team consists of dedicated real estate professionals passionate about helping our clients achieve their goals. Every client receives personalized attention, expert guidance, and unparalleled service. Meet our team:

Alison Malkin
Alison Malkin

Broker/Owner

860-214-8008

Email
Alison Malkin
Nicole Malkin James

Broker/Owner

843-614-7222

Email
Alison Malkin
Luis Torres

Associate Broker

860-383-5211

Email
Alison Malkin
Debra Pliego

Realtor®

860-919-7376

Email
Alison Malkin
Madison Wells

Realtor®

860-538-7567

Email
Alison Malkin
Lori Sierpinski

Realtor®

860-222-4692

Email
Alison Malkin
Jim Murkette

Realtor®

860-539-5009

Email
Alison Malkin
Leah Pliego

Realtor®

860-681-7373

Email

City : Trumbull
Cooling : Central Air
County : Fairfield
Neighborhood : N/A
Parcel : 999999999
Postal Code : 06611
Roof : Tar/Gravel
Sewage System : Public Sewer Connected
Total SqFt : 1995
Watersource : Public Water Connected
weeb : RPR, IDX Sites, Realtor.com

Phone

860-384-7624

Address

20 Hopmeadow St, Unit 821, Weatogue, CT 06089


© Copyright By Essentia Realty