Real Estate Agent in Connecticut and Western Massachusetts

37 Old Route 7
Brookfield, Connecticut

Condo/Co-Op For Sale

3

Bedrooms

2 (full) / 1 (half)

Bathrooms

1,888

Sq Ft

$ 599,900

Price

37 Old Route 7
Brookfield, Connecticut

Brookfield, Connecticut

Description:

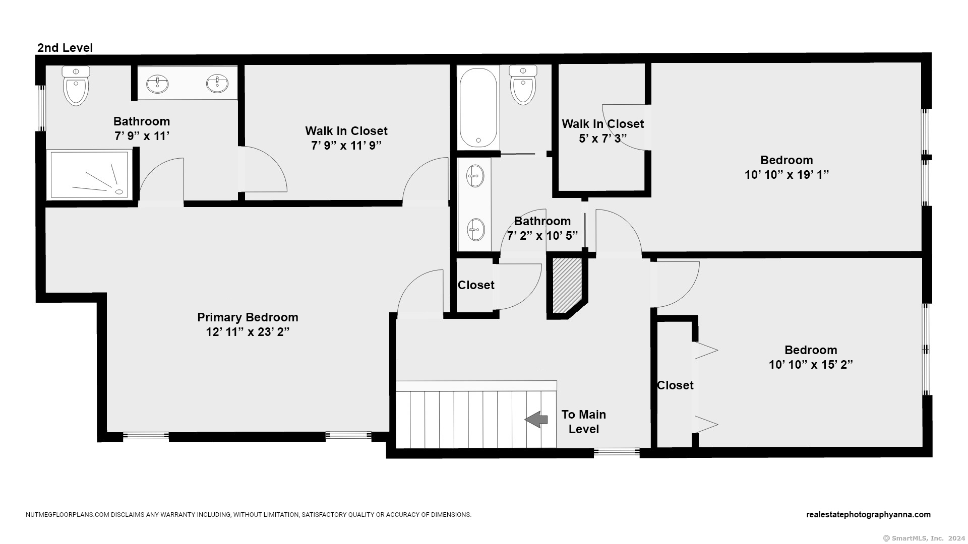
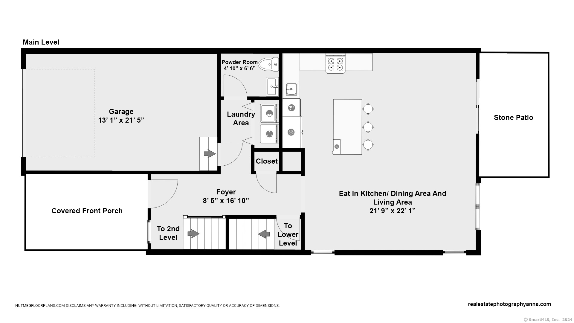
Introducing Greenway Crossing: An enclave of 12 lavish duplex residences nestled in the vibrant heart of Brookfield, steps away from the famed 4 corners. New construction completed in Feb 2023, this custom duplex epitomizes modern luxury, showcasing an inviting open layout, gorgeous hardwood flooring throughout, an attached one-car garage, a full basement just waiting to be finished and a private stone patio ideal for entertaining. The main level exudes sophistication with its seamless integration of a sun-drenched living area with sliding doors accessing the patio, a chic dining space, and a chef's kitchen adorned with sleek cabinetry, a center island, quartz countertops, and stainless-steel appliances. A convenient half bath and laundry area add to the functionality of this level. Ascend to the 2nd floor, where serenity awaits in the expansive primary suite, boasting a gorgeous tiled full bath and a generous walk-in closet. 2 additional guest bedrooms and a full hall bath provide ample accommodation for family and guests. Equipped with central air, propane heating, and connected to public water and sewer, this residence epitomizes convenience and comfort. Ideally situated in Fairfield County, Brookfield offers proximity to the New York-Connecticut border, ensuring effortless access to premier shopping, dining, and entertainment options. Embrace a lifestyle of ease with low maintenance living with Homeowners Association.

Listing Courtesy of Preston Gray Real Estate

Meet Our Team

Our team consists of dedicated real estate professionals passionate about helping our clients achieve their goals. Every client receives personalized attention, expert guidance, and unparalleled service. Meet our team:

Alison Malkin
Alison Malkin

Broker/Owner

860-214-8008

Email
Alison Malkin
Nicole Malkin James

Broker/Owner

843-614-7222

Email
Alison Malkin
Luis Torres

Associate Broker

860-383-5211

Email
Alison Malkin
Debra Pliego

Realtor®

860-919-7376

Email
Alison Malkin
Madison Wells

Realtor®

860-538-7567

Email
Alison Malkin
Lori Sierpinski

Realtor®

860-222-4692

Email
Alison Malkin
Jim Murkette

Realtor®

860-539-5009

Email
Alison Malkin
Leah Pliego

Realtor®

860-681-7373

Email

Appliances Included : Oven/Range, Refrigerator, Dishwasher
Association Fee Includes : Grounds Maintenance, Trash Pickup, Snow Removal, Road Maintenance
Attic : Pull-Down Stairs
Basement : Full
Full Baths : 2
Half Baths : 1
Baths Total : 3
Beds Total : 3
City : Brookfield
Complex : Brookfield Crossing
Cooling : Central Air
County : Fairfield
Elementary School : Per Board of Ed
Fuel Tank Location : Above Ground
Garage Parking : Attached Garage
Garage Slots : 1
Description : Lightly Wooded, Level Lot
Amenities : Health Club, Lake, Library, Medical Facilities, Shopping/Mall
Neighborhood : Brookfield Center
Parcel : 2743069
Pets : Pets Allowed
Pets Allowed : Yes
Postal Code : 06804
Sewage System : Public Sewer Connected
Total SqFt : 1888
Tax Year : July 2025-June 2026
Total Rooms : 5
Watersource : Public Water Connected
weeb : RPR, IDX Sites, Realtor.com

Phone

860-384-7624

Address

20 Hopmeadow St, Unit 821, Weatogue, CT 06089


© Copyright By Essentia Realty