Real Estate Agent in Connecticut and Western Massachusetts

16 North Street
Madison, Connecticut

Single Family For Sale

1

Bedrooms

1 (full) / 0 (half)

Bathrooms

476

Sq Ft

$ 154,000

Price

16 North Street
Madison, Connecticut

Madison, Connecticut

Description:

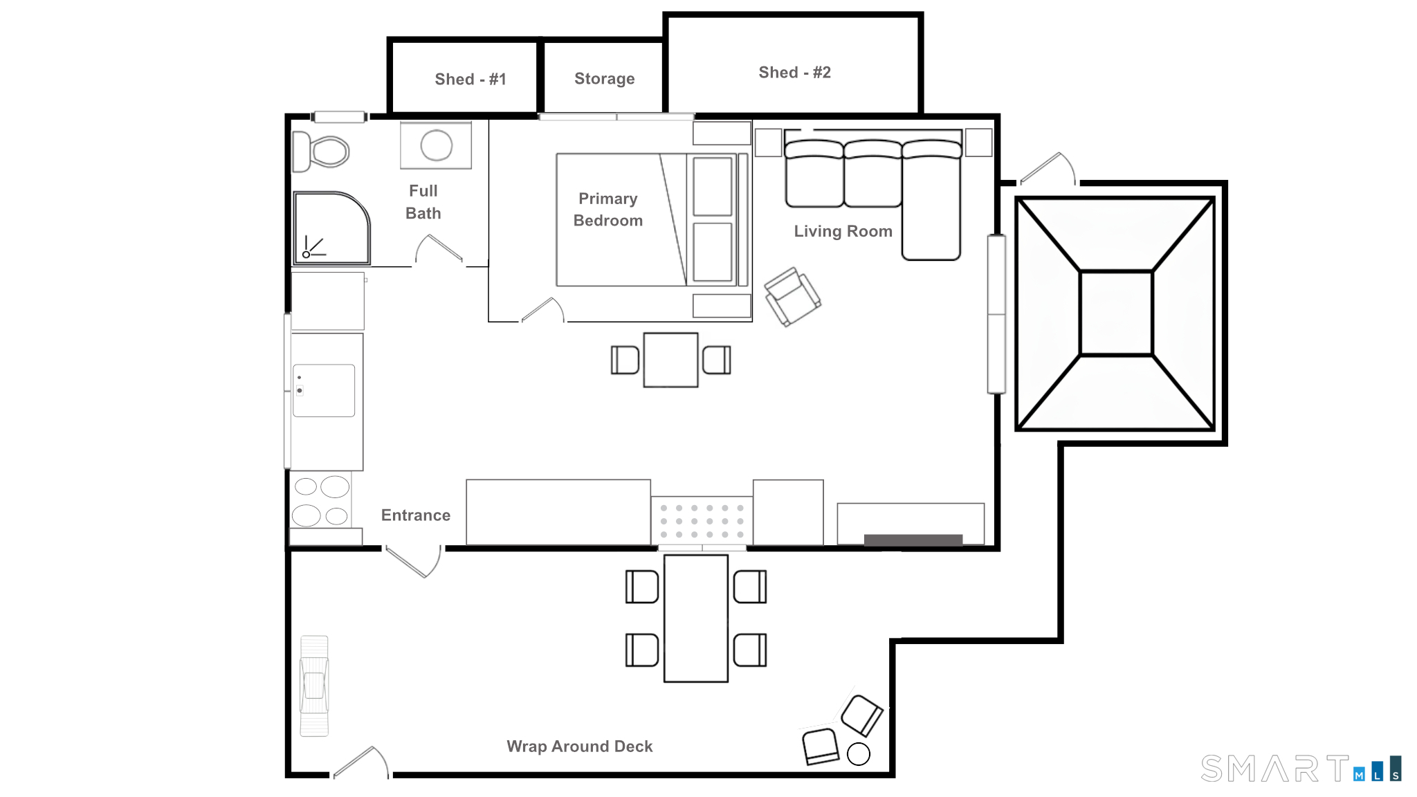
Escape to the Connecticut shoreline with this beautifully maintained seasonal cottage in Dud's Village in Madison-the perfect summer retreat just minutes from the beach. Located less than one mile from Hammonasset Beach State Park, Connecticut's largest shoreline park, this charming getaway offers effortless access to two miles of sandy beaches, scenic walking and biking trails, and endless summer activities. Residents of Dud's Village also enjoy a private path that leads directly to the beach, making spontaneous sunset walks and beach days part of everyday life. This fully furnished, move-in-ready cottage has been thoughtfully maintained and cared for, allowing you to start enjoying the season immediately. The cozy interior includes one bedroom with built-in storage, a nicely stocked kitchen, a sleeper sofa for additional guests, a remodeled bathroom with a fresh modern feel, and the added convenience of an in-unit washer and dryer. Step outside to your spacious wrap-around deck, designed for relaxed coastal living and easy entertaining. The outdoor space comes complete with a grill, tabletop firepit, and patio seating, creating the perfect setting for summer evenings, morning coffee, or gathering with friends after a day at the beach.

Listing Courtesy of Real Broker CT, LLC

Meet Our Team

Our team consists of dedicated real estate professionals passionate about helping our clients achieve their goals. Every client receives personalized attention, expert guidance, and unparalleled service. Meet our team:

Alison Malkin
Alison Malkin

Broker/Owner

860-214-8008

Email
Alison Malkin
Nicole Malkin James

Broker/Owner

843-614-7222

Email
Alison Malkin
Luis Torres

Associate Broker

860-383-5211

Email
Alison Malkin
Debra Pliego

Realtor®

860-919-7376

Email
Alison Malkin
Madison Wells

Realtor®

860-538-7567

Email
Alison Malkin
Lori Sierpinski

Realtor®

860-222-4692

Email
Alison Malkin
Jim Murkette

Realtor®

860-539-5009

Email
Alison Malkin
Leah Pliego

Realtor®

860-681-7373

Email

Acres : 0.05
Appliances Included : Electric Range, Microwave, Refrigerator, Washer, Dryer
Basement : None
Full Baths : 1
Baths Total : 1
Beds Total : 1
City : Madison
Cooling : Wall Unit
County : New Haven
Elementary School : Per Board of Ed
Foundation : Concrete
Garage Parking : Off Street Parking
Description : Level Lot
Middle School : Per Board of Ed
Neighborhood : Hammonasset
Parcel : 999999999
Total Parking Spaces : 2
Postal Code : 06443
Property Information : Seasonal Property
Roof : Asphalt Shingle
Sewage System : Cesspool
SgFt Description : As per public records
Total SqFt : 476
Subdivison : Dud's Village
Tax Year : July 2025-June 2026
Total Rooms : 3
Watersource : Public Water Connected
weeb : RPR, IDX Sites, Realtor.com

Phone

860-384-7624

Address

20 Hopmeadow St, Unit 821, Weatogue, CT 06089


© Copyright By Essentia Realty