Real Estate Agent in Connecticut and Western Massachusetts

8 Elmwood Court
Brookfield, Connecticut

Condo/Co-Op For Sale

3

Bedrooms

2 (full) / 1 (half)

Bathrooms

2,594

Sq Ft

$ 879,000

Price

8 Elmwood Court
Brookfield, Connecticut

Brookfield, Connecticut

Description:

Still time to personalize the interior finishes! Soaring ceilings and graceful details define the Albrecht's thoughtful design. A spacious living room with a cathedral ceiling and a lovely two-story dining room flank the welcoming two-story foyer. Overlooking the expansive great room with rear yard access, the well-appointed kitchen is complemented by a large center island with breakfast bar, wraparound counter and cabinet space, a roomy pantry, and a passthrough to the dining room. Highlighting the gorgeous secluded primary bedroom suite is a sizable walk-in closet and a lovely primary bath with a dual-sink vanity, large luxe shower with seat, linen storage, and a private water closet. Central to a generous loft, secondary bedrooms feature walk-in closets and a shared hall bath with a dual-sink vanity and linen storage. Additional highlights include a convenient powder room adjacent to the centrally located laundry, and extra storage throughout. Move-in for Fall 2026!

Listing Courtesy of Thomas Jacovino

Meet Our Team

Our team consists of dedicated real estate professionals passionate about helping our clients achieve their goals. Every client receives personalized attention, expert guidance, and unparalleled service. Meet our team:

Alison Malkin
Alison Malkin

Broker/Owner

860-214-8008

Email
Alison Malkin
Nicole Malkin James

Broker/Owner

843-614-7222

Email
Alison Malkin
Luis Torres

Associate Broker

860-383-5211

Email
Alison Malkin
Debra Pliego

Realtor®

860-919-7376

Email
Alison Malkin
Madison Wells

Realtor®

860-538-7567

Email
Alison Malkin
Lori Sierpinski

Realtor®

860-222-4692

Email
Alison Malkin
Jim Murkette

Realtor®

860-539-5009

Email
Alison Malkin
Leah Pliego

Realtor®

860-681-7373

Email

Appliances Included : Gas Range, Microwave, Dishwasher
Association Fee Includes : Grounds Maintenance, Trash Pickup, Snow Removal, Property Management, Road Maintenance, Insurance
Attic : Access Via Hatch
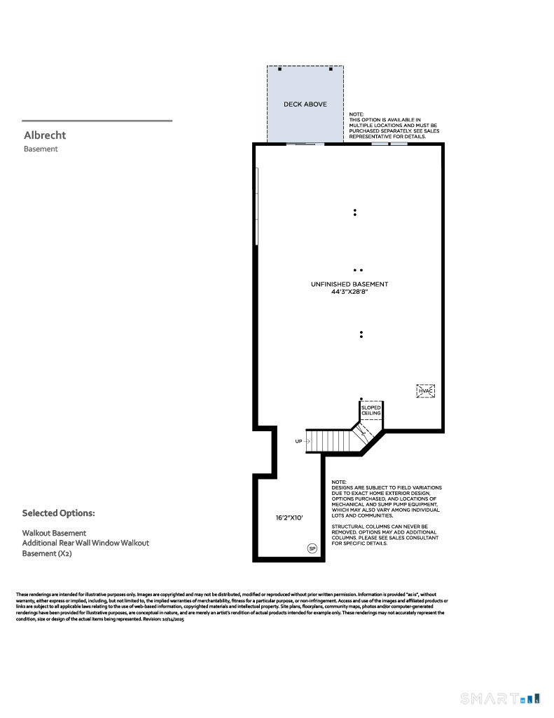
Basement : Full, Unfinished, Walk-out, Full With Walk-Out
Full Baths : 2
Half Baths : 1
Baths Total : 3
Beds Total : 3
City : Brookfield
Complex : The Willows at Brookfield
Cooling : Central Air
County : Fairfield
Elementary School : Per Board of Ed
Fireplaces : 1
Garage Parking : Attached Garage, Driveway
Garage Slots : 2
Description : Corner Lot
Amenities : Basketball Court, Golf Course, Health Club, Lake, Medical Facilities, Park, Private School(s), Public Rec Facilities
Neighborhood : N/A
Parcel : 999999999
Total Parking Spaces : 2
Pets : 2 Per House
Pets Allowed : Yes
Postal Code : 06804
Additional Room Information : Foyer, Laundry Room, Roughed-In Bath
Sewage System : Public Sewer Connected
SgFt Description : Floorplans
Total SqFt : 2594
Tax Year : July 2025-June 2026
Total Rooms : 10
Watersource : Public Water Connected
weeb : RPR, IDX Sites, Realtor.com

Phone

860-384-7624

Address

20 Hopmeadow St, Unit 821, Weatogue, CT 06089


© Copyright By Essentia Realty