Real Estate Agent in Connecticut and Western Massachusetts

65 Forest Road
Milford, Connecticut

Condo/Co-Op For Sale

2

Bedrooms

2 (full) / 1 (half)

Bathrooms

1,440

Sq Ft

$ 438,000

Price

65 Forest Road
Milford, Connecticut

Milford, Connecticut

Description:

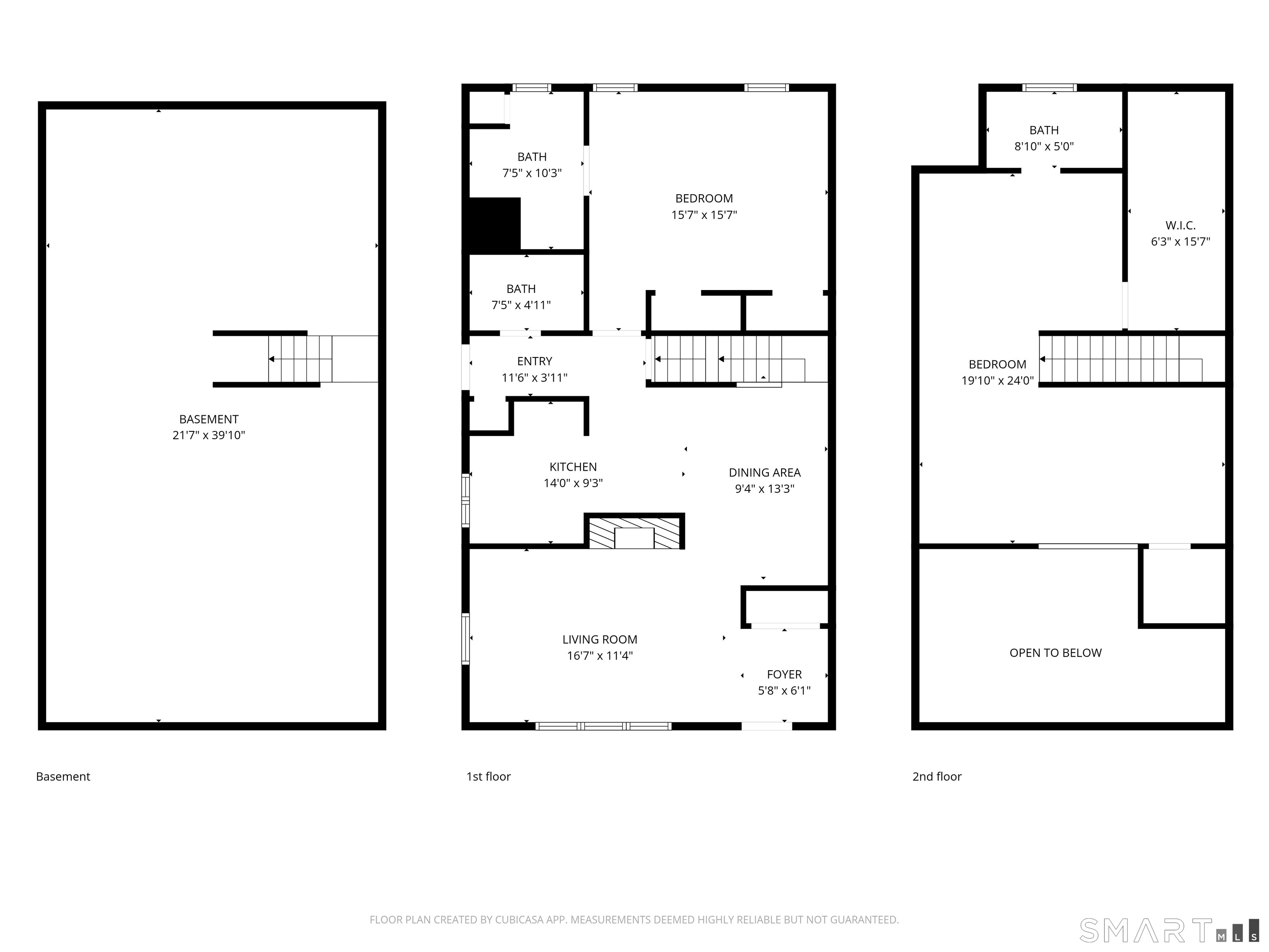
Welcome to Forest Park, a well-maintained and desirable 55+ community in Milford. This bright and welcoming 2-bed, 2.5-bath home offers 1,440 SF with cathedral-ceiling living room, gas fireplace, and open loft overlooking the main level. The first-floor primary suite includes a private ensuite bath, while a convenient half bath serves guests.The updated kitchen with breakfast bar and granite countertops feature a full suite of appliances, and functional layout. Features include central air, gas heat, full unfinished basement, attached 1-car garage with interior access and private patio. Updates include hot water heater (2020), washer (2021), dryer (2023).Upstairs, an open loft-style second level overlooks the living room below, offering a versatile layout with a full bath and walk-in closet - ideal as a second bedroom, office, sitting room, or exercise space. This thoughtful design enhances the home's spacious and open feel. The location offers excellent convenience, with the Milford Metro-North Station just 2 miles away for easy commuting, plus close access to I-95 and Merritt Parkway. Enjoy being minutes from Milford's town center, beaches, shopping, dining, and everyday conveniences - all while living in a quiet, well-kept 49-unit community. A move this spring and you'll also enjoy the association pool and clubhouse all summer long! This complex is not VA loan approved.

Listing Courtesy of Houlihan Lawrence WD

Meet Our Team

Our team consists of dedicated real estate professionals passionate about helping our clients achieve their goals. Every client receives personalized attention, expert guidance, and unparalleled service. Meet our team:

Alison Malkin
Alison Malkin

Broker/Owner

860-214-8008

Email
Alison Malkin
Nicole Malkin James

Broker/Owner

843-614-7222

Email
Alison Malkin
Luis Torres

Associate Broker

860-383-5211

Email
Alison Malkin
Debra Pliego

Realtor®

860-919-7376

Email
Alison Malkin
Madison Wells

Realtor®

860-538-7567

Email
Alison Malkin
Lori Sierpinski

Realtor®

860-222-4692

Email
Alison Malkin
Jim Murkette

Realtor®

860-539-5009

Email
Alison Malkin
Leah Pliego

Realtor®

860-681-7373

Email

Appliances Included : Oven/Range, Microwave, Range Hood, Refrigerator, Dishwasher, Washer, Dryer
Association Amenities : Club House, Guest Parking, Pool
Association Fee Includes : Club House, Grounds Maintenance, Trash Pickup, Snow Removal, Water, Property Management, Pool Service, Road Maintenance, Insurance
Attic : Access Via Hatch
Basement : Full, Unfinished, Storage, Interior Access, Concrete Floor
Full Baths : 2
Half Baths : 1
Baths Total : 3
Beds Total : 2
City : Milford
Complex : Forest Park
Cooling : Ceiling Fans, Central Air
County : New Haven
Elementary School : Per Board of Ed
Fireplaces : 1
Garage Parking : Attached Garage, Paved, On Street Parking, Driveway
Garage Slots : 1
Handicap : 32" Minimum Door Widths, Bath Grab Bars
Description : Level Lot
Amenities : Health Club, Medical Facilities, Public Rec Facilities, Public Transportation, Shopping/Mall
Neighborhood : N/A
Parcel : 1214944
Total Parking Spaces : 2
Pets : 2
Pets Allowed : Yes
Pool Description : In Ground Pool
Postal Code : 06461
Property Information : Adult Community 55
Sewage System : Public Sewer Connected
Total SqFt : 1440
Tax Year : July 2025-June 2026
Total Rooms : 5
Watersource : Public Water Connected
weeb : RPR, IDX Sites, Realtor.com

Phone

860-384-7624

Address

20 Hopmeadow St, Unit 821, Weatogue, CT 06089


© Copyright By Essentia Realty