Real Estate Agent in Connecticut and Western Massachusetts

11 Cricket Lane
Avon, Connecticut

Single Family For Sale

4

Bedrooms

2 (full) / 1 (half)

Bathrooms

3,650

Sq Ft

$ 799,900

Price

11 Cricket Lane
Avon, Connecticut

Avon, Connecticut

Description:

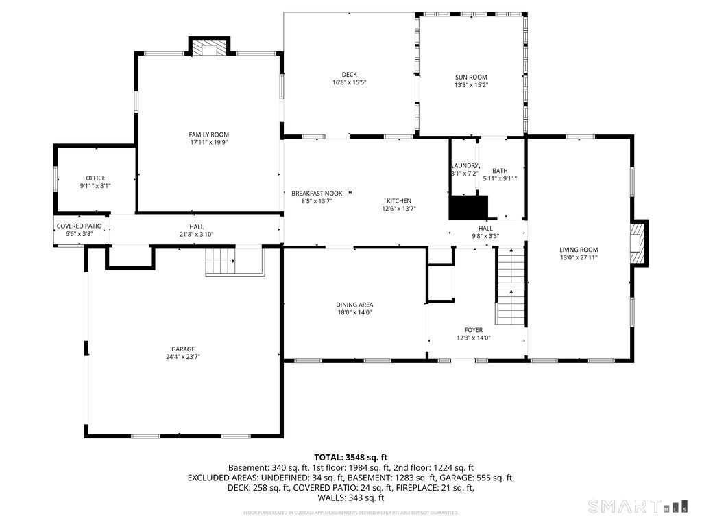
Tucked at the very end of a cul-de-sac and set high on nearly 3 private acres, 11 Cricket Lane delivers the kind of space that's hard to come by-especially with protected land behind, ensuring your backdrop stays exactly as it is. Inside, the home unfolds with room to truly live. Multiple gathering spaces offer options for everything from quiet nights in to hosting on a larger scale, while a dedicated first-floor office makes working from home feel separate and productive. The layout flows easily, balancing openness with defined spaces where you want them. Upstairs, 4 bedrooms provide comfortable retreats, w/a primary suite that includes a beautifully remodeled bath feeling more like a boutique escape than an everyday space-thoughtfully designed and finished with a clean, modern edge. The lower level adds even more versatility, with partially finished space ready for a media room, gym, or play area, plus an impressive amount of storage that keeps everything organized without compromise. Outside the setting is the standout. Elevated on the lot, surrounded by nature, and neighboring the sought-after Northington neighborhood, this is where privacy meets community. There's a sense of calm here that's hard to replicate. All of this is complemented by access to Avon's highly regarded, award-winning Roaring Brook school system, adding long-term value to an already compelling home. A rare combination of scale, setting, and location-this property feels different the moment you arrive.

Listing Courtesy of William Raveis Real Estate

Meet Our Team

Our team consists of dedicated real estate professionals passionate about helping our clients achieve their goals. Every client receives personalized attention, expert guidance, and unparalleled service. Meet our team:

Alison Malkin
Alison Malkin

Broker/Owner

860-214-8008

Email
Alison Malkin
Nicole Malkin James

Broker/Owner

843-614-7222

Email
Alison Malkin
Luis Torres

Associate Broker

860-383-5211

Email
Alison Malkin
Debra Pliego

Realtor®

860-919-7376

Email
Alison Malkin
Madison Wells

Realtor®

860-538-7567

Email
Alison Malkin
Lori Sierpinski

Realtor®

860-222-4692

Email
Alison Malkin
Jim Murkette

Realtor®

860-539-5009

Email
Alison Malkin
Leah Pliego

Realtor®

860-681-7373

Email

Acres : 2.7
Appliances Included : Electric Cooktop, Wall Oven, Microwave, Refrigerator, Dishwasher, Washer, Dryer
Attic : Pull-Down Stairs
Basement : Full, Partially Finished, Full With Hatchway
Full Baths : 2
Half Baths : 1
Baths Total : 3
Beds Total : 4
City : Avon
Cooling : Central Air
County : Hartford
Elementary School : Roaring Brook
Fireplaces : 2
Foundation : Concrete
Fuel Tank Location : In Basement
Garage Parking : Attached Garage
Garage Slots : 2
Description : On Cul-De-Sac
Amenities : Golf Course, Health Club, Library, Medical Facilities, Park
Neighborhood : N/A
Parcel : 437086
Postal Code : 06001
Roof : Asphalt Shingle
Sewage System : Public Sewer Connected
Total SqFt : 3650
Tax Year : July 2025-June 2026
Total Rooms : 8
Watersource : Public Water Connected
weeb : RPR, IDX Sites, Realtor.com

Phone

860-384-7624

Address

20 Hopmeadow St, Unit 821, Weatogue, CT 06089


© Copyright By Essentia Realty