Real Estate Agent in Connecticut and Western Massachusetts

272 Old Orchard Road
Bristol, Connecticut

Single Family For Sale

4

Bedrooms

2 (full) / 1 (half)

Bathrooms

2,220

Sq Ft

$ 688,600

Price

272 Old Orchard Road
Bristol, Connecticut

Bristol, Connecticut

Description:

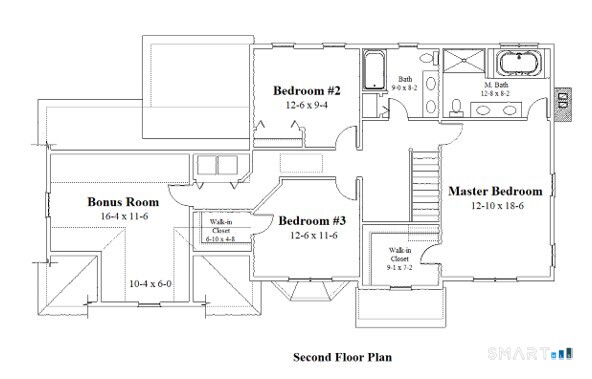
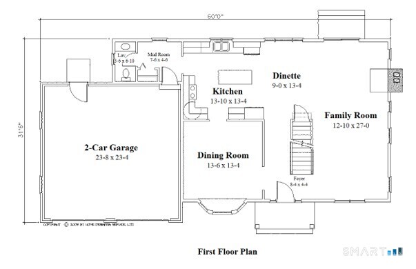
Still time to choose your finishes and make it your own-new construction on Old Orchard Road in Bristol, offering a rare opportunity to personalize key details while construction is underway. This 2,220 sq ft home is thoughtfully designed with a modern open-concept layout, ideal for both everyday living and entertaining. The main level features a bright, spacious living area that flows seamlessly into the kitchen and dining space, creating a natural gathering area at the heart of the home. The kitchen is planned as a central focal point, offering buyers the opportunity to select finishes and details that match their style, depending on the stage of construction. Upstairs, you'll find generously sized bedrooms, including a spacious primary suite with a private bath and ample closet space. The oversized fourth bedroom adds exceptional flexibility-perfect as a media room, home office, guest suite, or additional living space. Additional highlights include energy-efficient systems and quality craftsmanship throughout. Set on a peaceful street with convenient access to shopping, dining, and major commuter routes, this is a unique opportunity to secure new construction and shape it to your vision. Schedule your showing today.

Listing Courtesy of William Raveis Real Estate

Meet Our Team

Our team consists of dedicated real estate professionals passionate about helping our clients achieve their goals. Every client receives personalized attention, expert guidance, and unparalleled service. Meet our team:

Alison Malkin
Alison Malkin

Broker/Owner

860-214-8008

Email
Alison Malkin
Nicole Malkin James

Broker/Owner

843-614-7222

Email
Alison Malkin
Luis Torres

Associate Broker

860-383-5211

Email
Alison Malkin
Debra Pliego

Realtor®

860-919-7376

Email
Alison Malkin
Madison Wells

Realtor®

860-538-7567

Email
Alison Malkin
Lori Sierpinski

Realtor®

860-222-4692

Email
Alison Malkin
Jim Murkette

Realtor®

860-539-5009

Email
Alison Malkin
Leah Pliego

Realtor®

860-681-7373

Email

Acres : 0.57
Appliances Included : Oven/Range, Microwave, Range Hood, Dishwasher, Disposal
Attic : Access Via Hatch
Basement : Full, Unfinished, Interior Access, Full With Walk-Out
Full Baths : 2
Half Baths : 1
Baths Total : 3
Beds Total : 4
City : Bristol
Cooling : Central Air
County : Hartford
Elementary School : Per Board of Ed
Fireplaces : 1
Foundation : Concrete
Fuel Tank Location : Above Ground
Garage Parking : Attached Garage
Garage Slots : 2
Description : Corner Lot, Lightly Wooded
Neighborhood : N/A
Parcel : 2592199
Postal Code : 06010
Roof : Asphalt Shingle
Sewage System : Public Sewer Connected
SgFt Description : from blueprints
Total SqFt : 2220
Tax Year : July 2025-June 2026
Total Rooms : 7
Watersource : Public Water Connected
weeb : RPR, IDX Sites, Realtor.com

Phone

860-384-7624

Address

20 Hopmeadow St, Unit 821, Weatogue, CT 06089


© Copyright By Essentia Realty